home page > Annunci immobiliari in Italia > Marche > Ascoli Piceno > Offida > Case e ville indipendenti in vendita > Scheda immobile

Case e ville indipendenti in vendita a Offida

COMPILA IL MODULO SOTTOSTANTE PER RICEVERE MAGGIORI INFORMAZIONI







Invia la richiesta ad altre agenzie
Accetto il trattamento dei miei dati



Casa pi? immobiliare

Via val tiberina n. 140
63100 Ascoli Piceno

3388271146    0735.706206    3388271146

Offida
Prezzo: € 35.000
160



Descrizione:
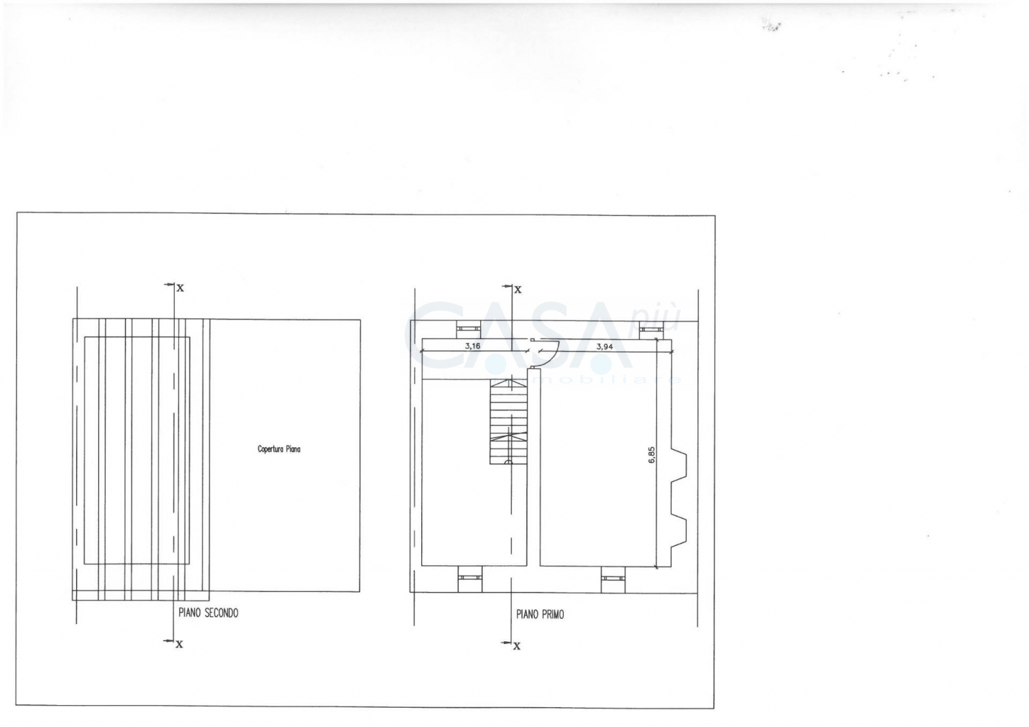
In provincia di ascoli piceno - nel comune di offida proponiamo in vendita rustico incorporato nelle antiche mura cittadine, con vista panoramica sulle colline marchigiane a soli 25 km da san benedetto del tronto e grottammare. Offida un' antico borgo racchiuso dalle mure castellane del xv sec, inserito tra i borghi pi belli d'italia. Nel cuore di offida, propriet consistente in un rudere, libero su tre lati, da abbattere e ricostruire. Si tratta di un ex rustico di vani 5,5 della superficie di circa 140 mq disposta su due piani (terra e primo) con corte di tipo esclusivo e locale di accesso, il cui portone d'ingresso affaccia su uno dei luoghi pi belli di offida, adiacente l'ex monastero di san francesco ora enoteca regionale. Progetto predisposto per la realizzazione di un edificio di tre piani (due piani abitativi oltre a vano tecnico con terrazza panoramica (o sottotetto). Possibilit di dividere la propriet in due unit abitative (come da progetto allegato) ideale per chi cerca casa in un angolo di tranquillit immerso nella magia e vivacit della straordinaria offida centro di bellezze naturali, edifici e monumenti di straordinario valore storico, divertimento con eventi, mostre, concerti, spettacoli, sagre e feste organizzate tutto l'anno oltre un'enogastronomia ricca di prodotti tipici e vini di alta qualit. Riepilogo dimensioni progetto stato modificato: superficie abitativa 1° e 2° piano di 140 mq, 3° piano con locale tecnico di 25 mq oltre terrazza panoramica ( oppure sottotetto di 70 mq) , corte esclusiva 30 mq circa, locale d'ingresso 20 mq circa. Propriet ideale sia come residenza abituale sia come casa vacanza che come investimento a reddito. - sc9568465




Caratteristiche immobile:
Codice inserzione: 1767234140
Rif. Annuncio: 170
Provincia: Ascoli Piceno
Comune: Offida
Superficie (Mq) : 160 Mq.
Tipo immobile: Case e ville indipendenti

Costi:
Prezzo € 35.000


Efficienza energetica:
Classe energetica: Immobile non soggetto all'obbligo di certificazione