home page > Annunci immobiliari in Italia > Marche > Ascoli Piceno > San Benedetto del Tronto > Case e ville indipendenti in vendita > Scheda immobile

Case e ville indipendenti in vendita a San Benedetto del Tronto

COMPILA IL MODULO SOTTOSTANTE PER RICEVERE MAGGIORI INFORMAZIONI







Invia la richiesta ad altre agenzie
Accetto il trattamento dei miei dati



Re casa s.r.l.s.

Via san francesco n. 13 b/c
63074 San Benedetto del Tronto (AP)

0735365467    3478329788    Riferimenti: Stefano Re

San Benedetto del Tronto
Prezzo: € 210.000
2
2
100
2



Descrizione:
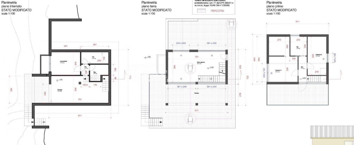
San benedetto del tronto - via colle euganei - proponiamo in vendita una proprietà unica nel suo genere, situata in posizione collinare e panoramica a soli 5 minuti di auto dal centro di san benedetto del tronto.la tenuta si compone di un ettaro di terreno agricolo (10.000 m), perfettamente adatto a diverse coltivazioni, quali uliveti e frutteti, o semplicemente per chi desidera vivere immerso nel verde e nella quiete della natura ed un lotto di circa 200 m, di cui 100 m edificabili, ideale per la realizzazione di una casa indipendente, una villa o una piccola struttura ricettiva.è già stato presentato in comune un progetto che prevede la costruzione di un'abitazione disposta su due livelli fuori terra, di circa 50 m ca ciascuno, nel rispetto della volumetria esistente. Progetto approvato. Suddivisione interna prevista: soggiorno con angolo cottura open space al piano terra, due camere da letto di cui una con cabina armadio ed un bagno al piano primo. Rustico con un lato fuori terra con ampio garage e/o rustico, bagno, locale lavanderia, ripostiglio.inoltre, vi è la possibilità di realizzare un piano interrato di ampiezza variabile, secondo le esigenze dell'acquirente, offrendo cosù un'ulteriore opportunità di ampliamento degli spazi abitativi.la proprietà gode di una vista mozzafiato sul mare e sulla città, incorniciata dallo splendido scenario naturale delle colline retrostanti, che garantiscono riservatezza, tranquillità e un'eccellente qualità dell'aria.




Caratteristiche immobile:
Codice inserzione: 1765779958
Rif. Annuncio: 9667
Provincia: Ascoli Piceno
Comune: San Benedetto del Tronto
Superficie (Mq) : 100 Mq.
Tipo immobile: Case e ville indipendenti
Camere: 2
Stato al rogito: Libero
Garage: Doppio
Posti auto scoperti: 2 posti auto
Tipologia giardino : Privato
Bagni: 2

Costi:
Prezzo € 210.000


Efficienza energetica:
Riscaldamento: autonomo
Tipologia riscaldamento: energia elettrica