home page > Annunci immobiliari in Italia > Marche > Ascoli Piceno > San Benedetto del Tronto > Negozi uffici capannoni in affitto > Scheda immobile

Negozi uffici capannoni in affitto a San Benedetto del Tronto

COMPILA IL MODULO SOTTOSTANTE PER RICEVERE MAGGIORI INFORMAZIONI







Invia la richiesta ad altre agenzie
Accetto il trattamento dei miei dati



Immobiliare calderisi

Viale a. De gasperi 54
63074 San Benedetto del Tronto (AP)

073586939    073586939

San Benedetto del Tronto
Prezzo: € 800
E
1
42



Descrizione:
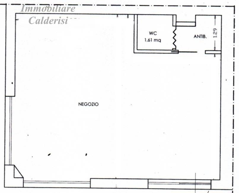
L'agenzia immobiliare calderisi propone in locazione un locale commerciale di circa 42 metri quadrati complessivi, gode di una posizione strategica grazie alle sue 3 vetrine che si affacciano ad angolo su due strade ad alto traffico.queste, disposte ad angolo, garantiscono un'ottima visibilità e un'afflusso costante di potenziali clienti. Il locale, situato al pian terreno di un edificio di 3 piani, è composto da un unico locale di circa 35 metri quadrati calpestabili e un bagno.il suo stato di conservazione è ottimo, con finiture moderne e di alta qualità. Le spese condominiali sono di soli 15 euro al mese, rendendo questo spazio ancora più conveniente per chi desidera avviare o trasferire la propria attività in una delle zone più centrali e frequentate della città. L'esposizione delle vetrine su strada, unita alla presenza di un sistema di riscaldamento climatizzato, rendono questo locale perfetto per attività che richiedono una costante esposizione di prodotti e servizi, come ad esempio un negozio di abbigliamento o per servizi. Il contesto in cui si trova è vivace e dinamico, con numerosi negozi, uffici e attività commerciali nelle vicinanze.inoltre, il riscaldamento è garantito da un moderno sistema di aria/elettrico, che garantisce un'ottima efficienza energetica. Non perdere l'opportunità di affittare questo locale commerciale in una delle zone più richieste di san benedetto del tronto!agenzia immobiliare calderisi




Caratteristiche immobile:
Codice inserzione: 1768542494
Rif. Annuncio: A665P
Provincia: Ascoli Piceno
Comune: San Benedetto del Tronto
Superficie (Mq) : 42 Mq.
Tipo immobile: Negozi uffici capannoni
Stato immobile: recente
Stato al rogito: Occupato
Bagni: 1

Costi:
Prezzo € 800


Efficienza energetica:
Classe energetica: E
Indice di prestazione energetica (EPgl): 104.95 kWh/mc annui
Tipologia riscaldamento: energia elettrica