home page > Annunci immobiliari in Italia > Marche > Fermo > Porto Sant'Elpidio > Negozi uffici capannoni in vendita > Scheda immobile

Negozi uffici capannoni in vendita a Porto Sant'Elpidio

COMPILA IL MODULO SOTTOSTANTE PER RICEVERE MAGGIORI INFORMAZIONI







Invia la richiesta ad altre agenzie
Accetto il trattamento dei miei dati



Quimmo agency

Via galileo galilei 6
48018 Faenza (RA)

0299944698

Porto Sant'Elpidio
Prezzo: € 130.000
F
1
227



Descrizione:
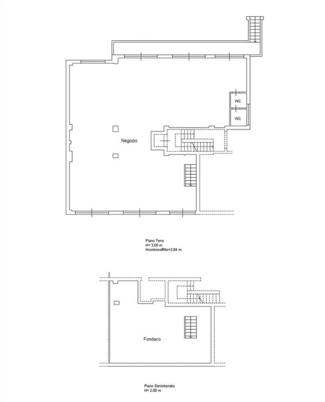
Proponiamo in vendita un'unità commerciale con deposito situata a porto sant'elpidio, in via giuseppe mazzini 233, in posizione di forte passaggio lungo il tratto urbano della ss16.l'immobile è inserito all'interno di un complesso a destinazione mista residenziale e commerciale e si sviluppa su due livelli, piano terra e piano seminterrato. Al piano terra il negozio si distingue per l'ottima visibilità grazie alla doppia esposizione angolare, con tre vetrine affacciate su via giuseppe mazzini e ulteriori tre vetrine sulla parallela via firenze, dalla quale è possibile accedere anche tramite scala dedicata.gli spazi interni risultano ampi e luminosi, ideali per attività commerciali che necessitano di forte visibilità e accessibilità. Il piano seminterrato ospita un locale deposito, perfetto come area di stoccaggio o supporto all'attività principale.




Caratteristiche immobile:
Codice inserzione: 1776826128
Rif. Annuncio: 2639175
Provincia: Fermo
Comune: Porto Sant'Elpidio
Superficie (Mq) : 227 Mq.
Tipo immobile: Negozi uffici capannoni
Stato immobile: usato
Bagni: 1

Costi:
Prezzo € 130.000


Efficienza energetica:
Classe energetica: F
Riscaldamento: autonomo