home page > Annunci immobiliari in Italia > Marche > Macerata > Porto Recanati > Attività commerciali in vendita > Scheda immobile

Attività commerciali in vendita a Porto Recanati

COMPILA IL MODULO SOTTOSTANTE PER RICEVERE MAGGIORI INFORMAZIONI







Invia la richiesta ad altre agenzie
Accetto il trattamento dei miei dati



Immobili all'asta

Viale sabotino 4
20121 Milano

0280888267    Riferimenti: Ivano De Natale

Porto Recanati
Prezzo: € 37.500
F
1592



Descrizione:
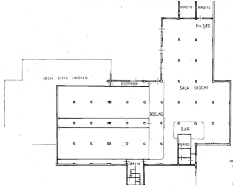
Sala giochi all'asta in via s. D'aquisto, porto recanti (mc)si propone il diritto di piena proprietà su immobile ad uso commerciale sito in via salvo d'acquisto 8/a, nel comune di porto recanati (mc).nello specifico si tratta di una sala giochi al piano seminterrato, composta da:- 2 sale giochi- bowling.l'unità risulta avere una superficie complessiva di circa 1592mq.dati catastalifoglio 16 part.209:- sub.116, cat.d/6, r.c. € 6.538,34, via santa maria in potenza n.8/a- sub.117, cat.d/6, r.c. € 1.580,00, via santa maria in potenza n.8/a.chi siamoimmobiliallasta.it aiuta le persone a comprare casa all'asta e migliorare la qualità della loro vita senza correre rischi, grazie ad una piattaforma specializzata in aste immobiliari sviluppata intorno alle vere esigenze di chi cerca casa all'asta e ad un team di 30 professionisti esperti dedicato, che ti guida passo passo in un acquisto sicuro e certificato da una tripla garanzia sull'immobile e sul servizio. a differenza delle agenzie troverai: + varietà: gestiamo migliaia di immobili ogni mese+ aiuto concreto: consulenti focalizzati nell'aiutarti a raggiungere il tuo obiettivo+ tranquillità: tripla garanzia che ti tutela da ogni rischio sull'acquistoalcuni risultati oggettivi nell'ultimo anno e mezzo:- +500 clienti portati all'asta - +200 case aggiudicate, per un valore totale di 15 milioni- +7 milioni risparmiati nell'acquistocontattaci subito per parlare con uno dei nostri consulenti che ti aiuterà a trovare la casa all'asta senza correre rischi.




Caratteristiche immobile:
Codice inserzione: 1765426303
Rif. Annuncio: ST12088
Provincia: Macerata
Comune: Porto Recanati
Superficie (Mq) : 1592 Mq.
Tipo immobile: Attività commerciali
Stato immobile: usato
Anno costruzione/ristrutturazione: 1960

Costi:
Prezzo € 37.500


Efficienza energetica:
Classe energetica: F
Indice di prestazione energetica (EPgl): 175 kWh/mc annui