home page > Annunci immobiliari in Italia > Marche > Pesaro e Urbino > Fano > Negozi uffici capannoni in vendita > Scheda immobile

Negozi uffici capannoni in vendita a Fano

COMPILA IL MODULO SOTTOSTANTE PER RICEVERE MAGGIORI INFORMAZIONI







Invia la richiesta ad altre agenzie
Accetto il trattamento dei miei dati



Agenzia speranzini

Via bartolagi da fano 6
61032 Fano (PU)

0721829926    Riferimenti: AGENZIA SPERANZINI

Fano
Prezzo: € 370.000
G
2
2
350
Su più livelli



Descrizione:
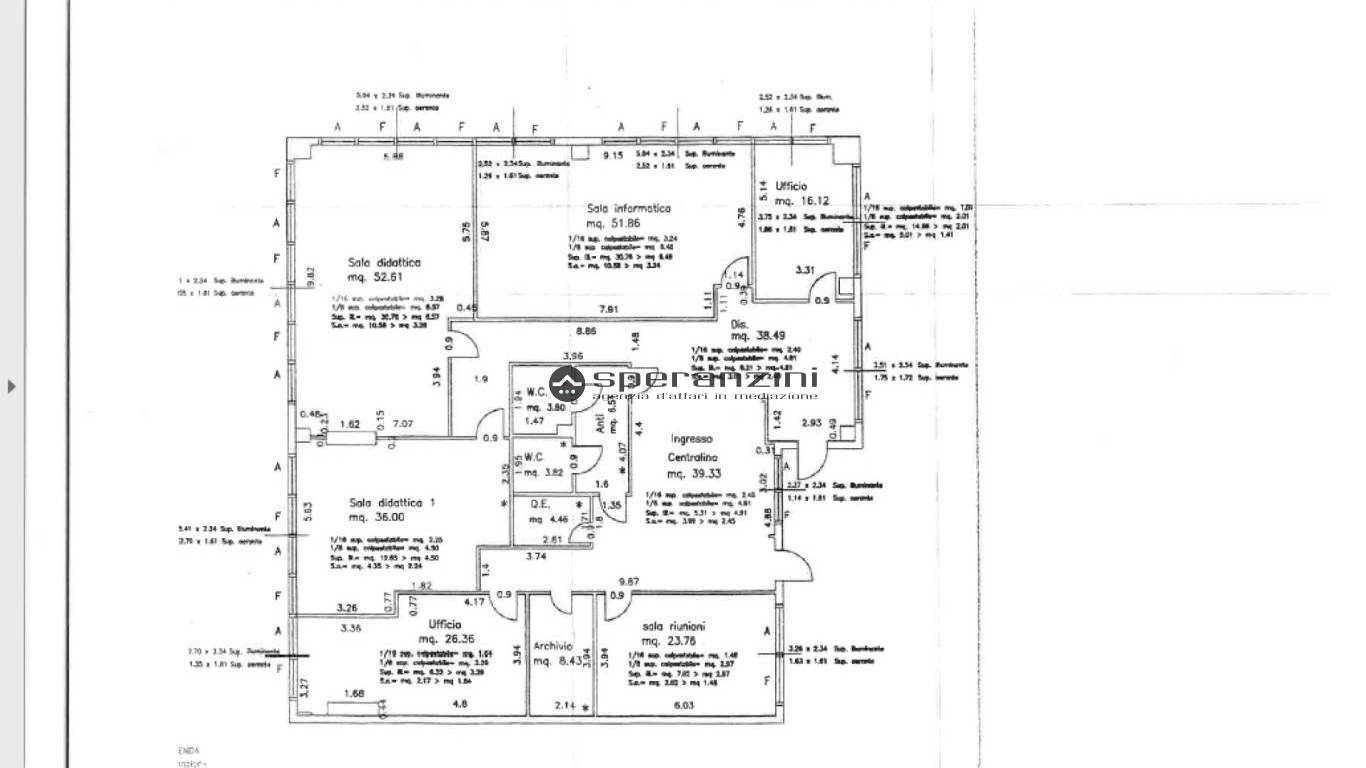
Bellocchi: fano - bellocchi, si presenta un'opportunità- unica per gli investitori interessati all'acquisto di un ufficio a reddito. Situato al primo e ultimo piano, questo ufficio spazioso e luminoso si estende su una superficie di circa 350 mq. Gli impianti sono completamente conformi alle normative vigenti, garantendo un'efficienza energetica ottimale e un ambiente di lavoro confortevole. Le pareti attrezzate offrono flessibilità- e praticità- per organizzare lo spazio secondo le esigenze individuali. Questo immobile rappresenta un ottimo investimento grazie alla sua ubicazione strategica e alla possibilità- di generare un reddito stabile. Con una rendita promettente, si presenta come una scelta intelligente per coloro che cercano opportunità- di investimento solide e redditizie nel settore immobiliare commerciale. Classe energetica: g - ipe: 175.00kwh/mc anno




Caratteristiche immobile:
Codice inserzione: 1760930400
Rif. Annuncio: CV1884
Provincia: Pesaro e Urbino
Comune: Fano
Superficie (Mq) : 350 Mq.
Tipo immobile: Negozi uffici capannoni
Piano: Su più livelli
Camere: 2
Stato al rogito: Libero
Bagni: 2

Costi:
Prezzo € 370.000


Efficienza energetica:
Classe energetica: G
Indice di prestazione energetica (EPgl): 175 kWh/mc annui
Riscaldamento: autonomo