Modifica ricerca
Vendita - Affitto
Provincia:
Comune:
Tipologia:
Prezzo:
Numero camere:

 Cerca in vendita anche

Immobili in vendita a Pesaro

 Cerca in affitto anche

Immobili in affitto a Pesaro

Annunci immobiliari di vendita e affitto a Pesaro

  Ultimi 30 annunci immobiliari inseriti nel comune di Pesaro
Pesaro (PU)    |    € 2.600.000    |    949 Mq    |    Rif. CBI099-1528-520836

 8

Vendita case e ville indipendenti
Splendida villa vista mare sulle colline di pesaroimmersa nella quiete delle prime colline di pesaro, in località trebbiantico e a pochi minuti dal centro e dal mare adriatico, questa villa rappresenta una proposta rara nel panorama immobiliare della riviera marchigiana.la proprietà si distingue per un progetto architettonico di forte personalità, pensato per offrire una dimensione abitativa elegante e perfettamente vivibile in ogni stagione. La posizione è uno dei suoi punti di forza: una vista panoramica a 360°...
Visualizza i dettagli >>


Pesaro (PU)    |    € 155.000    |    220 Mq    |    Rif. 2526

 8

Vendita rustici
Baratoff/strada dell'angelo custode. Proponiamo in vendita un raro rudere di 220mq su due piani situato nel verde tra strada dell'angelo custode e strada dei condotti, nel comune di pesaro a pochi km dal mare e dalla città dove presenti tutti i servizi. Massima privacy in contesto indipendente.composizione: l'immobile si presenta completamente da ristrutturare, ristrutturazione importante che però offre la possibilità esclusiva di una ricostruzione personalizzata rispettando i vincoli storici esistenti; il progetto original...
Visualizza i dettagli >>


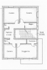
Pesaro (PU)    |    Centro   |   € 300.000    |    140 Mq    |    Rif. 271

 8

Vendita appartamento
Case bruciate vendesi appartamento indipendente in bifamiliarein zona tranquilla e residenziale e cosù composto: piano terra: grande giardino e zona pavimentta ad uso esclusivo, garage doppio interrato e taverna formata da soggiorno, cucina abitabile, ripostiglio e bagno.piano primo: ingresso su disimpegno, soggiorno con terrazzo, cucina abitabile e cucinotto con terrazzo, tre camere matrmoniali, una camereta-ripostiglio e un bagno con box doccia.classe energetica g ipe 218,oo kwh/m2 prezzo di vendita: € 300.000,00 trattabili rif. 2...
Visualizza i dettagli >>


Pesaro (PU)    |    Montegranaro   |   € 345.000    |    146 Mq    |    Rif. 2326

 8

Vendita appartamento
Pesaro, piazza redi a ridosso del centro e dal mare, in contesto condominiale vicino a tutti i principali servizi proponiamo appartamento quadrilocale di 146 mq al piano quinto e ultimo dotato di ascensore.composizione: entrando dal portone principale, ci troviamo in un ampio ingresso che anticipa il luminoso soggiorno dal quale possiamo accedere alla cucina abitabile completa di balconcino con vista sulla città. dall'ingresso si prosegue verso la zona notte, il disimpegno anticipa 2 camere matrimoniali entrambe con balcone, una camerett...
Visualizza i dettagli >>


Pesaro (PU)    |    Cattabrighe Celletta   |   € 320.000    |    132 Mq    |    Rif. A045

 2

Vendita case e ville a schiera
L'agenzia chiamacasa propone in vendita case a schiera di prossima realizzazione nella primissima periferia di pesaro, di varie metrature e con giardino privato fronte e retro a partire da euro 320.000,00. Gli appartamenti si sviluppano su due piani e ciascuno possiede un garage nel piano seminterrato. L'agenzia applica la provvigione del 3% + iva sul prezzo di acquisto dell'immobile e verrà corrisposta dall'acquirente contestualmente alla firma del contratto preliminare di compravendita (compromesso) o, in mancanza di questo, al rogito ...
Visualizza i dettagli >>


Pesaro (PU)    |    € 260.000    |    90 Mq    |    Rif. D9046

 8

Vendita appartamento
Pesaro (pu) / torraccia: cod. Rif. D9046 - l'agenzia immobiliare lalla bianchi propone in vendita bellissimo appartamento (trilocale) duplex in perfetto stato di 90 mq con 2 meravigliosi terrazzi, 2 balconi loggiati e ampio garage. l'immobile è situato in contesto condominiale, il complesso residenziale è in ottimo stato (2008) ed è circondato da uno splendido parco e giardini dove si respira un clima di estrema tranquillità. l'appartamento ubicato al primo e secondo piano (piano 1-2) è cosù com...
Visualizza i dettagli >>


Pesaro (PU)    |    Tombaccia   |   € 845.000    |    1100 Mq    |    Rif. 6925

 8

Vendita case e ville indipendenti
Tombaccia: a due passi dal centro, vicino alla nuova pista ciclabile, proponiamo palazzo di quattro piani con 3 ampi appartamenti al secondo piano oltre a soffitte abbinate, un ampio laboratorio al primo piano trasformabile in diversi appartamenti, magazzino al piano terra trasformabile in posti auto coperti. Ottimo investimento per imprese. composizione: il palazzo oggetto di vendita è composta da 1100 mq commerciali, più precisamente è composta da tre appartamenti al secondo piano per un totale di circa 473 mq accessori c...
Visualizza i dettagli >>


Pesaro (PU)    |    € 275.000    |    190 Mq    |    Rif. ET1024

 8

Vendita appartamento
Tutti i metri quadri che la tua famiglia merita!immerso nel verde questo appartamento indipendente in villa ha tante caratteristiche uniche.- piano primo di 160 mq con ingresso indipendente- cucina abitabile- salone doppio con possibilità di ricavare studio- 3 camere da letto matrimoniali - 2 bagni recentemente ristrutturati- balcone e loggia dalle generose metrature- soffitta di buona altezza, collegata internamente, con spazi separati e lavanderia. all'esterno:- box auto privato a piano terra 50 mq- giardino privato di 2.000 mq, in par...
Visualizza i dettagli >>


Pesaro (PU)    |    € 200.000    |    94 Mq    |    Rif. A7039

 8

Vendita appartamento
Pesaro (pu) / pantano alta: cod. Rif. A7039 - l'agenzia immobiliare lalla bianchi propone in vendita appartamento al primo piano con ascensore di 90 mq dotato di terrazza, balcone, posto auto coperto e garage con ingresso indipendente in contesto unifamiliare. l'immobile, situato in posizione strategica della città, richiede interventi di ammodernamento ed è cosù composto: ingresso, cucina abitabile, soggiorno, un bagno, un ripostiglio, due camere da letto e un'ulteriore stanza, un balcone, una terrazza, lavanderia e co...
Visualizza i dettagli >>


Pesaro (PU)    |    € 145.000    |    220 Mq    |    Rif. V9214

 8

Vendita case e ville a schiera
Pesaro (pu) / mombaroccio: cod. Rif. V 9214 - l'agenzia immobiliare lalla bianchi propone in vendita in località mombaroccio, antico casolare libero su quattro lati, di totali 210 mq disposto su due piani, oltre a ricovero attrezzi e un terreno circostante di 35.000 mq. l'immobile è completamente da ristrutturare, il piano regolatore prevede anche la demolizione e ricostruzione, con ulteriore possibilità di edificare in parte, nel terreno adiacente. il casale è cosù suddiviso: al piano terra: scope...
Visualizza i dettagli >>


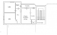
Pesaro (PU)    |    € 435.000    |    130 Mq    |    Rif. 11962

 8

Vendita appartamento
Loft indipendente di design con terrazza privata e ascensore - mare e centro a piedidescrizionenel cuore di una zona tranquilla e riservata di pesaro, a pochi minuti a piedi dal mare e dal centro storico, proponiamo in vendita un esclusivo loft indipendente libero su quattro lati, caratterizzato da un architettura moderna e da finiture di alto livello.l abitazione si distingue per gli ambienti luminosi e dal design contemporaneo, impreziositi da pavimenti in resina e pareti in calce cruda che creano un atmosfera elegante e minimalista.uno degli...
Visualizza i dettagli >>


Pesaro (PU)    |    € 190.000    |    92 Mq    |    Rif. 11416

 3

Vendita appartamento
Pesaro - centro dir.benellia ridosso della ztl del centro storico di pesaro e a pochi passi dal mare, proponiamo appartamento di 92 mq completamente ristrutturato a nuovo nel 2025 e pronto da arredare.l immobile si trova al primo piano di un edificio con doppio ascensore ed à composto da:- ingresso- soggiorno con cucina open space- due camere da letto- studio- antibagno con predisposizione per lavatrice e asciugatrice- bagno principale- secondo bagnodotazioni e finiture:- illuminazione a led dimmerabile- riscaldamento a pavimento central...
Visualizza i dettagli >>


Pesaro (PU)    |    € 195.000    |    64 Mq    |    Rif. 11743

 8

Vendita appartamento
Pesaro - pantano bassa - trilocale con giardino privato, balconi e cantina. Classe c !!! open house sabato 11 aprile ! a pochi minuti dal centro, in zona residenziale tranquilla e ben servita, ti presentiamo un delizioso appartamento trilocale al piano rialzato, inserito in una graziosa palazzina ristrutturata nel 2009. giardinetto privato al piano terra, ideale per chi ama il verde o ha un animale domestico cantina al piano seminterrato, utile riporre bici e come depositopossibilità- di garage in locazione nella palazzina (contratto in ...
Visualizza i dettagli >>


Pesaro (PU)    |    € 210.000    |    57 Mq    |    Rif. 12000

 2

Vendita appartamento
Nuovo bilocale in centro storico a pesaro - a due passi dal mare nel cuore pulsante di pesaro, a soli 20 metri da piazzale lazzarini, nasce una soluzione abitativa moderna ed esclusiva: bilocale con balcone di circa 60 mq commerciali in fase di realizzazione, inserito in un elegante contesto servito da ascensore.la casa che puoi ancora personalizzarehai la possibilità- di scegliere finiture e dettagli interni, creando uno spazio su misura per il tuo stile e le tue esigenze. posizione semplicemente perfetta: centro storico: 20 metrispiagg...
Visualizza i dettagli >>


Pesaro (PU)    |    € 140.000    |    60 Mq    |    Rif. 11987

 8

Vendita appartamento
Villa fastiggi - carino trilocale per una giovane coppia, zero spese condominiali!in zona servitissima, a pochi passi da tutti i principali servizi, proponiamo in vendita delizioso trilocale situato al primo ed ultimo piano di una casetta indipendente completamente ristrutturata nel 2004.ingresso indipendentenessuna spesa condominialeottimo anche come investimentol'appartamento si sviluppa su ambienti caldi e accoglienti, caratterizzati da travi a vista e parquet, ed à composto da:luminoso soggiorno con angolo cottura e balcone affacciat...
Visualizza i dettagli >>


Pesaro (PU)    |    € 199.000    |    89 Mq    |    Rif. 11993

 8

Vendita appartamento
Nuova occasione a villa fastiggi! perfetta per giovani coppie, single o come investimento sicuro.se stai cercando una casa accogliente, moderna e pronta da vivere, questa soluzione su due livelli potrebbe essere quella giusta per te! in palazzina di recente costruzione, proponiamo un appartamento molto curato e ben rifinito composto da:luminoso soggiorno con cucinottocamera da lettobagnobalconemansarda collegata internamente con splendida area relax e caminettocameretta, secondo bagno, ripostiglio e secondo balconeutenze autonomearia condiziona...
Visualizza i dettagli >>


Pesaro (PU)    |    € 120.000    |    82 Mq    |    Rif. 11818

 8

Vendita case e ville a schiera
Roncosambaccio originale schiera cielo-terra con terrazzo vista mare! ottima anche coma la seconda casaa pochi minuti da pesaro, immersa nel verde delle prime colline, proponiamo in vendita affascinante schiera cielo-terra di 82 mq, con splendida vista panoramica fino al mare!l immobile, disposto su 3 livelli, offre ambienti caldi e accoglienti: piano terra: ingresso indipendente, zona giorno con camino, cucina con cucinotto (facilmente apribile in open space) primo piano: camera matrimoniale con balcone, cameretta e bagno finestrato secondo pi...
Visualizza i dettagli >>


Pesaro (PU)    |    € 265.000    |    181 Mq    |    Rif. 11855

 8

Vendita appartamento
Pesaro - centro di trebbiantico ! con giardino.a pochi chilometri da pesaro, nel centro del tranquillo paese di trebbiantico, proponiamo in vendita schiera rustica cielo-terra, completamente ristrutturata nel 2010. l immobile si sviluppa su due livelli, di mq 65 circa ciascuno oltre a una comoda tavernetta con cucina, ed à cosଠcomposto:piano terra: ingresso su accogliente soggiorno con camino, angolo cottura e bagno.primo piano: due camere da letto e bagno finestrato con vasca.piano seminterrato la tavernetta con la caratterist...
Visualizza i dettagli >>


Pesaro (PU)    |    € 182.000    |    118 Mq    |    Rif. 11621

 8

Vendita appartamento
Ampio appartamento versatile - quartiere vismarain posizione tranquilla e non trafficata, nel ricercato quartiere vismara, proponiamo in vendita appartamento di ampia metratura al quarto piano, inserito in contesto residenziale ben curato e circondato da estese aree verdi condominiali.l'immobile colpisce per la generosità- degli spazi interni, che consentono diverse soluzioni di personalizzazione: l'attuale distribuzione prevede doppio salone, cucina abitabile, due grandi camere da letto, bagno principale finestrato con doccia e vasca e ...
Visualizza i dettagli >>


Pesaro (PU)    |    € 610.000    |    332 Mq    |    Rif. 11961

 8

Vendita case e ville a schiera
Pesaro - centro storico fuori dalla ztl - via del governatorenel cuore del centro storico di pesaro, in posizione riservata e di grande fascino, proponiamo in vendita proprietà- cielo-terra disposta su pi๠livelli, con utenze completamente autonome e spazi ampi e versatili.l abitazione si sviluppa su piano primo, piano secondo e soppalco, con altezze interne fino a 3,00 metri che conferiscono luminosità- e respiro agli ambienti. La distribuzione interna consente diverse possibilità- di personalizzazione, rendendo l...
Visualizza i dettagli >>


Pesaro (PU)    |    € 230.000    |    145 Mq    |    Rif. 11873

 8

Vendita appartamento
Pesaro centro via contramine vendiamo un appartamento di circa 140 mq oltre accessori, posto al terzo piano con ascensore. L'immobile à composto da un ampio salone con balcone, cucina abitabile con balcone, tre ampie camere da letto, bagno con finestra, lavanderia, ripostiglio. Completa la proprietà- una comoda cantina al piano interrato.l'appartamento à attualmente locato con una rendita di 8.700 euro annualicod. 11873 classe energetica: non dichiarata...
Visualizza i dettagli >>


Pesaro (PU)    |    € 275.000    |    168 Mq    |    Rif. 11944

 8

Vendita appartamento
Pesaro, zona muraglia, porzione di casa bifamigliare con giardino taverna ! appartamento indipendente al primo piano di una casa bifamiliare degli anni 70, libero su quattro lati e particolarmente luminoso. caratteristiche principali:appartamento - primo piano (115 mq):ingressocucina abitabilesoggiorno con balconedue camere matrimoniali e una camera singola bagnopiano terra: cantina finestrata di circa mq 50 (altezza 2,70 m) con lavanderia e cucinapossibilità- di realizzare un bilocale indipendentecapanno condonato uso garagegiardino esc...
Visualizza i dettagli >>


Pesaro (PU)    |    € 320.000    |    148 Mq    |    Rif. 11908

 8

Vendita appartamento
Immobile opzionato, visite sospese!!!pesaro zona ipercoop - miralfioreappartamento al piano rialzato di una palazzina recentemente ristrutturata, situata nel cuore del quartiere pantano bassa, a due passi dal centro storico di pesaro. l'immobile offre una distribuzione interna funzionale e accogliente, con 2 camere matrimoniali e 1 camera singola, 2 bagni finestrati e ben areati, cucina abitabile con balcone terrazzato e un ampio salone che dà- accesso a uno scoperto privato, in parte pavimentato e in parte verde. le stanze sono rivestit...
Visualizza i dettagli >>


Pesaro (PU)    |    € 4.900   |    Rif. 11903

 7

Affitti negozi uffici capannoni
Pesaro - villa fastiggi | affittasi capannone d1 di 1.600 mq con area esterna privatain una delle principali aree produttive di pesaro, proponiamo in affitto capannone industriale (categoria d1) di 1.600 mq, composto da due ampie campate e dotato di ingresso indipendente con cancello e recinzione privata.caratteristiche principali:- superficie interna: 1.600 mq - struttura con doppia arcata - ufficio operativo interno - due servizi igienici - spazio esterno recintato, ideale per manovra mezzi e carico/scarico - accesso facilitato per veicoli in...
Visualizza i dettagli >>


Pesaro (PU)    |    € 420.000    |    192 Mq    |    Rif. 11806

 8

Vendita case e ville a schiera
Immobile opzionato, visite sospese!!!villa fastiggi. in posizione riservata e con ottima esposizione proponiamo in vendita casa a schiera cielo terra con giardino esclusivo, ideale anche per famiglie numerose. l'abitazione essendo di testa ha tre lati liberi, e si distribuisce principalmente su due livelli. Troviamo al piano rialzato una bellissima e grande zona living,molto luminosa con cucina a vista e caminetto ventilato. Al piano primo due camere da letto (una delle quali con cabina armadio), due balconi e bagno grande, in mansarda terza ca...
Visualizza i dettagli >>


Pesaro (PU)    |    € 310.000    |    186 Mq    |    Rif. 11714

 8

Vendita case e ville indipendenti
Candelara - l'indipendenza che hai sempre sognatonel cuore dell'antico borgo di candelara, ma a soli cinque minuti dal centro di pesaro, sorge una casa unica: una dimora indipendente che unisce la solidità- della ricostruzione recente al fascino senza tempo dello stile rustico.varcata la soglia, l atmosfera à accogliente e calda: un ampio salone con camino diventa il cuore della casa, perfetto per serate d inverno. Una porta scorrevole conduce alla cucina, pratica e luminosa, con affaccio diretto sull ampio giardino privato, un oa...
Visualizza i dettagli >>


Pesaro (PU)    |    € 240.000    |    103 Mq    |    Rif. 11866

 8

Vendita appartamento
Occasione! pesaro - centro mare !!! appartamento con tre camere a due passi da rocca costanza. in una delle zone pi๠richieste della città-, tra il centro storico e il lungomare, proponiamo in vendita un appartamento luminoso e spazioso di circa 105 mq, posto al primo piano con ascensore.la casa offre ambienti comodi e ben distribuiti: ingresso accoglientecucina abitabile separataampio soggiorno con accesso a terrazzino vivibiledue grandi camere matrimoniali e una singoladue bagni , di cui uno completamente ristrutturatoripostig...
Visualizza i dettagli >>


Pesaro (PU)    |    € 228.000    |    130 Mq    |    Rif. 11844

 8

Vendita appartamento
Immobile opzionato, visite sospese!!!pantano bassa - tranquillita' e spazi esterni! in una delle zone pi๠richieste e tranquille di pesaro, pantano bassa, proponiamo in vendita un ampio e versatile appartamento di 105 mq, situato in una riservata perpendicolare di via ciro menotti, lontana dal traffico e vicinissima al centro.questa à la soluzione ideale per chi cerca la tranquillità- di una zona residenziale e la comodità- di avere ogni servizio a portata di mano, con il grande vantaggio di uno spazio esterno priv...
Visualizza i dettagli >>


Pesaro (PU)    |    € 220.000    |    150 Mq    |    Rif. 11813

 8

Vendita appartamento
Pesaro - via galileiultimo piano luminoso con vista panoramica e tutti i servizi a portata di manose sogni una casa spaziosa, piena di luce, dove nessuno abita sopra di te e tutto à a portata di bicicletta, questo à l appartamento che fa per te.in una delle zone pi๠comode e servite di pesaro, ti proponiamo un ampio ultimo piano di 127 mq, perfetto per una famiglia che cerca comfort, privacy e tranquillità- — senza rinunciare alla vicinanza al centro.l appartamento si compone di: ingresso accogliente ampio soggior...
Visualizza i dettagli >>


Pesaro (PU)    |    € 315.000    |    181 Mq    |    Rif. 11766

 8

Vendita appartamento
Trebbiantico - appartamento indipendente con vista mare e ascensore privatoa pochi minuti da pesaro, nella tranquilla e panoramica zona di trebbiantico, proponiamo un appartamento indipendente di ampia metratura, rifinito con gusto e caratterizzato da una splendida vista mare che si estende fino a fano.l'abitazione si sviluppa su tre livelli, di cui due collegati con ascensore privato.piano primo: ingresso su ampio soggiorno con cucina a vista e accesso a una terrazza abitabile panoramica, perfetta per pranzi e momenti di relax all'aperto; bagn...
Visualizza i dettagli >>