home page > Annunci immobiliari in Italia > Piemonte > Biella > Occhieppo Superiore > Negozi uffici capannoni in vendita > Scheda immobile

Negozi uffici capannoni in vendita a Occhieppo Superiore

COMPILA IL MODULO SOTTOSTANTE PER RICEVERE MAGGIORI INFORMAZIONI







Invia la richiesta ad altre agenzie
Accetto il trattamento dei miei dati



Quimmo agency

Via galileo galilei 6
48018 Faenza (RA)

0299944698

Occhieppo Superiore
Prezzo: € 30.450
1
76



Descrizione:
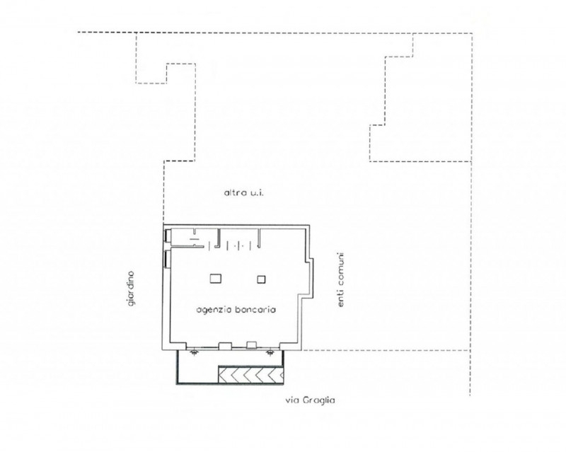
Riferimento: bp0934porzione immobiliare situata in provincia di biella, ad occhieppo superiore. La proprietà si trova su via graglia, in un'area semicentrale caratterizzata da un buon passaggio di veicoli e da discreta densità abitativa e rurale. L'unità immobiliare era precedentemente impegnata da una filiale di banca ed è ora disponibile. Fa parte di un edificio residenziale di 5 piani ed è al piano terra, con tanto di caveau. Ottima la visibilità grazie alle vetrine affacciate su strada.




Caratteristiche immobile:
Codice inserzione: 1760409802
Rif. Annuncio: 2528004
Provincia: Biella
Comune: Occhieppo Superiore
Superficie (Mq) : 76 Mq.
Tipo immobile: Negozi uffici capannoni
Stato immobile: usato
Bagni: 1

Costi:
Prezzo € 30.450


Efficienza energetica: