home page > Annunci immobiliari in Italia > Piemonte > Biella > Sostegno > Negozi uffici capannoni in vendita > Scheda immobile

Negozi uffici capannoni in vendita a Sostegno

COMPILA IL MODULO SOTTOSTANTE PER RICEVERE MAGGIORI INFORMAZIONI







Invia la richiesta ad altre agenzie
Accetto il trattamento dei miei dati



Quimmo agency

Via galileo galilei 6
48018 Faenza (RA)

0299944698

Sostegno
Prezzo: € 65.000
F
1
140



Descrizione:
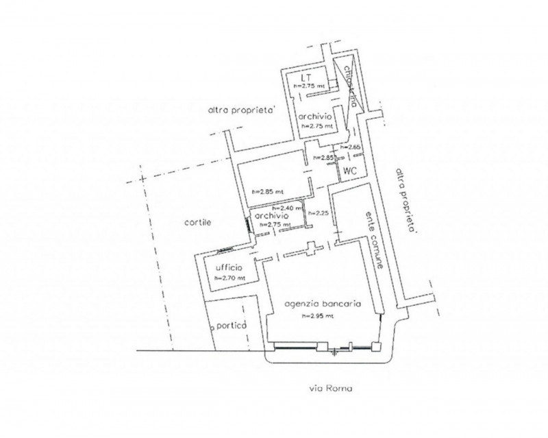
Riferimento: bp0968porzione immobiliare sita a sostegno, 750 abitanti in provincia di biella, sulla via roma, non distante dal municipio e dall'ufficio postale. Qui troviamo principalmente residenze e attività commerciali sulla strada. L'unità immobiliare era precedentemente impegnata da una filiale di banca ed è ora disponibile. Gode di buona visibilità, occupando il piano terra di una palazzina residenziale di tre piani con le finestre che guardano direttamente sulla via.




Caratteristiche immobile:
Codice inserzione: 1757386362
Rif. Annuncio: 2528006
Provincia: Biella
Comune: Sostegno
Superficie (Mq) : 140 Mq.
Tipo immobile: Negozi uffici capannoni
Stato immobile: usato
Bagni: 1

Costi:
Prezzo € 65.000


Efficienza energetica:
Classe energetica: F
Riscaldamento: centralizzato