home page > Annunci immobiliari in Italia > Piemonte > Cuneo > Alba > Case e ville a schiera in vendita > Scheda immobile

Case e ville a schiera in vendita a Alba

COMPILA IL MODULO SOTTOSTANTE PER RICEVERE MAGGIORI INFORMAZIONI







Invia la richiesta ad altre agenzie
Accetto il trattamento dei miei dati



Immobiliare moretta

Corso cortemilia 4
12051 Alba (CN)

0173366963

Alba
Prezzo: € 290.000
3
2
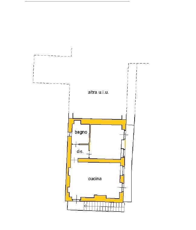
135
Piano terra



Descrizione:
A soli 4 km dal centro di alba, l'immobiliare moretta propone in vendita una porzione di cascinale indipendente, soluzione ideale sia come abitazione che come investimento.l'immobile è attualmente suddiviso in due unità abitative:- bilocale funzionale e ben disposto;- trilocale con spazi più ampi e vivibili.entrambe le unità sono locate e garantiscono una buona rendita annua, rendendo questa proprietà una scelta strategica per chi cerca un immobile a reddito nelle langhe.punti di forza:vicinanza ad alba (solo 4 km);indipendenza e tranquillità;immobile già a reddito;opportunità sia residenziale che di investimento.un'occasione interessante nel cuore delle langhe, perfetta per chi desidera un bene solido che unisce tradizione e redditività. Classe energetica: d




Caratteristiche immobile:
Codice inserzione: 1758598249
Rif. Annuncio: IM0033
Provincia: Cuneo
Comune: Alba
Superficie (Mq) : 135 Mq.
Tipo immobile: Case e ville a schiera
Stato immobile: usato
Piano: Piano terra
Camere: 3
Bagni: 2

Costi:
Prezzo € 290.000


Efficienza energetica:
Riscaldamento: autonomo