home page > Annunci immobiliari in Italia > Piemonte > Cuneo > Castiglione Falletto > Negozi uffici capannoni in affitto > Scheda immobile

Negozi uffici capannoni in affitto a Castiglione Falletto

COMPILA IL MODULO SOTTOSTANTE PER RICEVERE MAGGIORI INFORMAZIONI







Invia la richiesta ad altre agenzie
Accetto il trattamento dei miei dati



Prestigio immobiliare srl

Corso michele coppino 13
12051 Alba (CN)

0173590510    Riferimenti: Francesco Rolando

Castiglione Falletto
Prezzo: info in agenzia
D
800



Descrizione:
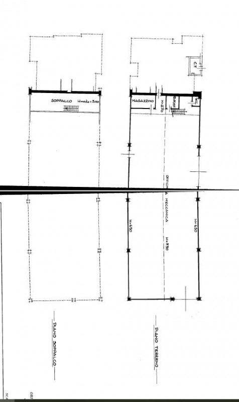
Proponiamo in affitto un capannone libero su quattro lati, situato a castiglione falletto con una superficie di 800 mq e un'altezza interna di 7,5 metri, questo immobile offre ampie possibilità per ogni tipo di utilizzo.la posizione strategica fronte strada garantisce un'ottima visibilità. Inoltre, l'immobile è dotato di un piazzale annesso che facilita le operazioni logistiche e il parcheggio.a completare la proprietà si trova anche una palazzina suddivisa su più livelli: al piano terreno sono presenti uffici accompagnati da servizi funzionali; mentre ai piani primo e secondo troviamo due unità attualmente adibite rispettivamente a laboratorio e abitazione. è importante sottolineare che esiste la possibilità di trasformare entrambe queste unità in spazi abitativi secondo le esigenze del locatario.in alternativa, c'è la flessibilità di affittare solo il capannone con gli uffici al piano terra.la nostra agenzia è a disposizione per ulteriori chiarimenti o per organizzare una visita all'immobile.




Caratteristiche immobile:
Codice inserzione: 1761536949
Rif. Annuncio: CAP1285
Provincia: Cuneo
Comune: Castiglione Falletto
Superficie (Mq) : 800 Mq.
Tipo immobile: Negozi uffici capannoni
Anno costruzione/ristrutturazione: 2000

Costi:
Prezzo info in agenzia


Efficienza energetica:
Classe energetica: D