Descrizione:
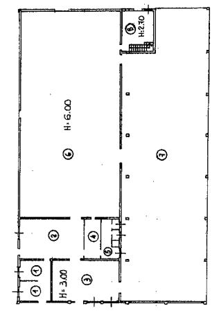
In una posizione tranquilla e riservata a fontaneto d'agogna, proponiamo in vendita un capannone artigianale di ampia metratura, perfetto per chi cerca spazi funzionali, versatilità d'uso e un contesto privo di disturbo.l'immobile è cosù composto: - superficie interna di circa 1200 mq - area uffici separata - servizi igienici già presenti - spazio esterno di circa 2000 mq ideale per manovra mezzi pesanti o area parcheggio - possibilità di suddivisione in due unità indipendentil'immobile si presenta in buone condizioni strutturali ed è già predisposto per attività produttive, logistiche o artigianali. La metratura importante consente diverse soluzioni operative, anche con rendita da locazione grazie alla predisposizione per un doppio accesso e impiantistica separabile. L'ampia area esterna garantisce facilità di accesso anche a mezzi di grandi dimensioni, rendendo l'intero complesso estremamente pratico per ogni tipo di esigenza lavorativa.chi cerca un luogo dove far crescere la propria attività troverà qui uno spazio concreto, flessibile e facilmente adattabile a nuove idee imprenditoriali. La tranquillità della zona, unita alla comodità dell'accesso, crea un connubio ideale per chi vuole lavorare in efficienza senza rinunciare alla qualità degli ambienti.contattaci oggi stesso per fissare una visita e scoprire tutto il potenziale di questo immobile.