home page > Annunci immobiliari in Italia > Piemonte > Novara > Suno > Case e ville indipendenti in vendita > Scheda immobile

Case e ville indipendenti in vendita a Suno

COMPILA IL MODULO SOTTOSTANTE PER RICEVERE MAGGIORI INFORMAZIONI







Invia la richiesta ad altre agenzie
Accetto il trattamento dei miei dati



Immobiliare botto oleggio

Via a. Gramsci 73
28047 Oleggio (NO)

03211512352    Riferimenti: Immobiliare Botto Oleggio

Suno
Prezzo: € 245.000
F
2
2
227



Descrizione:
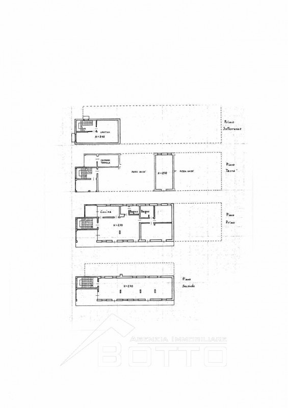
Questa casa semindipendente in vendita si trova a suno e ha un grazioso giardino di proprietà.l'immobile è disposto su 3 livelli cosù composti:- al piano terra troviamo ingresso e box auto;- al 1° piano si trova un alloggio formato da ampio soggiorno, cucina abitabile con balconcino, disimpegno, 2 camere da letto, 2 bagni, terrazzo e balcone;- al 2° e ultimo piano si trova un ampio locale mansardato dove è possibile ricavare un altro spazio abitativo.immersa in un tranquillo contesto residenziale, questa casa offre ambienti luminosi e confortevoli perfetti per la famiglia che necessita di spazio. Inoltre, il terrazzo è perfetto per rilassarsi in compagnia dei vostri cari godendo della vista sul giardino circostante. Pronta per essere abitata, questa è la soluzione giusta se sei alla ricerca di un immobile in una zona ben servita e con i giusti spazi sia interni che esterni. Non lasciarti sfuggire questa opportunità, contattaci per organizzare una visita.




Caratteristiche immobile:
Codice inserzione: 1757558484
Rif. Annuncio: 3-SUNSAL
Provincia: Novara
Comune: Suno
Superficie (Mq) : 227 Mq.
Tipo immobile: Case e ville indipendenti
Stato immobile: usato
Camere: 2
Garage: Singolo
Bagni: 2
Terrazze: 2

Costi:
Prezzo € 245.000


Efficienza energetica:
Classe energetica: F
Indice di prestazione energetica (EPgl): 321.34 kWh/mq annui
Riscaldamento: autonomo