home page > Annunci immobiliari in Italia > Piemonte > Torino > Ciriè > Terreni in vendita > Scheda immobile

Terreni in vendita a Ciriè

COMPILA IL MODULO SOTTOSTANTE PER RICEVERE MAGGIORI INFORMAZIONI







Invia la richiesta ad altre agenzie
Accetto il trattamento dei miei dati



Magistrelli immobiliare sas

C.so martiri della libertà, 31
10073 Ciriè (TO)

0119206302

Ciriè
Prezzo: € 45.000
1600



Descrizione:
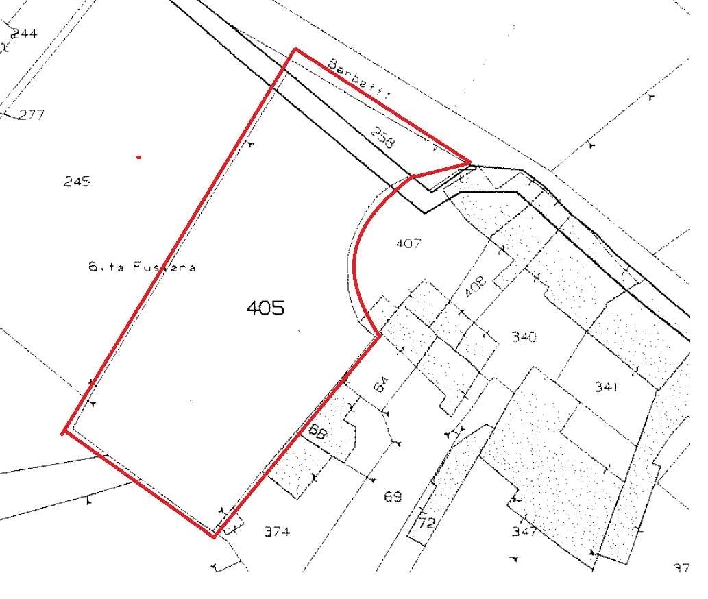
A devesi, località fusiera, in posizione soleggiata e pianeggiante proponiamo in vendita un lotto di terreno edificabile a destinazione residenziale. l'appezzamento è di mq. 1.600 ca con la possibilità di realizzare una cubatura di mc 530 pari a circa 175.mq di superficie. e' possibile realizzare una villa unifamiliare o bifamiliare presenza di tutti i servizi, linee fognatura, luca, gas e telefono passano sulla starada adiacente il lotto.classe energetica: non applicabile




Caratteristiche immobile:
Codice inserzione: 1774825850
Rif. Annuncio: V002314
Provincia: Torino
Comune: Ciriè
Superficie (Mq) : 1600 Mq.
Tipo immobile: Terreni

Costi:
Prezzo € 45.000


Efficienza energetica: