home page > Annunci immobiliari in Italia > Piemonte > Torino > Grugliasco > appartamenti in vendita > Scheda immobile

Appartamento in vendita a Grugliasco

COMPILA IL MODULO SOTTOSTANTE PER RICEVERE MAGGIORI INFORMAZIONI







Invia la richiesta ad altre agenzie
Accetto il trattamento dei miei dati



Home and business project

Corso galileo ferraris, 64
10121 Torino

3493905372    Riferimenti: Mauro Aglietto

Grugliasco
Prezzo: € 60.000
2
1
66
98



Descrizione:
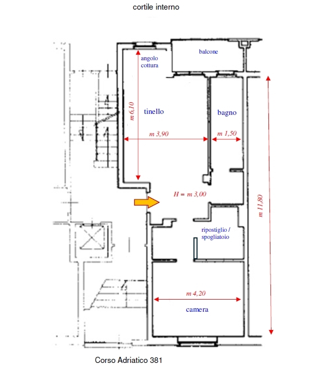
Rif: bene immobile facente parte dello stabile sito nel comune di grugliasco (torino), al numero civico 381 del corso adriatico e cosù definito:-appartamento (bilocale) al piano rialzato (1° piano fuori terra) dello stabile ai numeri civici 381-383 a grugliasco, individuato con il numero '2' (due) nella pianta allegata al regolamento condominiale (ut infra). E' composto da disimpegno, tinello con angolo cottura, una camera, un bagno, ed un ripostiglio, oltre alla cantina al piano interrato.la cantina associata all'alloggio è quella contraddistinta con il numero'2' (due) nella planimetria del piano interrato allegata al regolamento condominiale (ut infra).si rinvia, in ogni caso, a quanto riferito nella relazione peritale per le caratteristiche costruttive del fabbricato e dei cespiti pignorati.dati catastali a/3, classe 2°, consistenza 3,5 vani, superficie 82 mq, .l'appartamento è posto alle coerenze con il cortile comune (a nord), con il vano scale (ad ovest), con l'appartamento '3' (a est), e con la strada (a sud).la cantina è posta alle coerenze con il corridoio cantine e le cantine nn. 1, 4 e 6.le fotografie allegate hanno finalità puramente illustrative e potrebbero non rappresentare in modo esaustivo l'immobile. L'esattezza di tutti i dati pubblicati sarà verificata e confermata in sede di consulenza.se desidera valutare l'acquisto di un immobile in asta in totale trasparenza e sicurezza, si affidi alla nostra competenza e serietà. Offriamo un supporto completo al cliente, accompagnandolo a 360° lungo tutto il percorso tecnico e finanziario, dalla scelta dell'immobile alla partecipazione alla gara d'asta.contattaci per una consulenza gratuita presso il nostro studio. Gli immobili acquistati tramite aste giudiziarie sono mutuabili e finanziabili alle stesse condizioni di quelli presenti sul mercato libero.i nostri servizi ci dedichiamo con passione e professionalità a:aste giudiziariecompravendita immobiliare (residenziale, commerciale e industriale)cessione d'aziendail nostro obiettivo è offrire un servizio efficace, su misura e orientato ai risultati.nota per investitori. La nostra strategia si focalizza sull'acquisizione a forte sconto di crediti ipotecari e npl (non performing loans), oggi tra le opportunità di investimento più interessanti. Proponiamo due modalità operative:saldo e stralcio immobiliareasta pilotata remissiva stragiudiziale




Caratteristiche immobile:
Codice inserzione: 1763344532
Rif. Annuncio: 1362997/1593/4479962
Provincia: Torino
Comune: Grugliasco
Superficie (Mq) : 66 Mq.
Tipo immobile: Appartamento
Stato immobile: usato
Piano: Piano terra
Camere: 2
Bagni: 1

Costi:
Prezzo € 60.000


Efficienza energetica: