Modifica ricerca
Vendita - Affitto
Provincia:
Comune:
Tipologia:
Prezzo:
Numero camere:

 Cerca in vendita anche

Immobili in vendita a Lusernetta

 Cerca in affitto anche

Immobili in affitto a Lusernetta

Annunci immobiliari di vendita e affitto a Lusernetta

  Ultimi 30 annunci immobiliari inseriti nel comune di Lusernetta
Lusernetta (TO)    |    € 14.243    |    208 Mq    |    Rif. 1676-TO1031

 8

Vendita appartamento
Naffascinante casa semi-indipendente in vendita a lusernetta, in provincia di torino. Situata in una tranquilla via vista, questa splendida proprietà è disponibile all'asta immobiliare. L'abitazione, con una superficie di 208 mq, offre ampi spazi per personalizzare gli ambienti secondo le proprie esigenze. Costruita nel 1975, l'immobile si trova al piano terra, garantendo un facile accesso e comodità per tutte le età. Con 7 locali, 4 camere da letto e 3 bagni, questa casa offre infinite possibilità di adattame...
Visualizza i dettagli >>


Lusernetta (TO)    |    € 39.000    |    66 Mq    |    Rif. 551VRG

 8

Vendita case e ville indipendenti
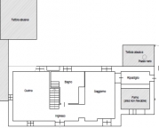
Lusernetta casetta indipendente.in prossimità della piazza principale, proponiamo ottima porzione di casa libera 2 lati con giardino privato.composta al p.t. Da ingresso su ampio soggiorno con angolo cottura, bagno, giardino privato di ca. 40 mq e posto auto/ cortile.al p.1 collegato sia da chiocciola interna che da pratica scala esterna, ampia camera matrimoniale e terrazzo coperto.ideale sia come prima abitazione che come seconda casa, si presenta in ottime condizioni generali , è disponibile subito e viene proposta in vendita p...
Visualizza i dettagli >>