home page > Annunci immobiliari in Italia > Piemonte > Torino > Moncalieri > appartamenti in vendita > Scheda immobile

Appartamento in vendita a Moncalieri

COMPILA IL MODULO SOTTOSTANTE PER RICEVERE MAGGIORI INFORMAZIONI







Invia la richiesta ad altre agenzie
Accetto il trattamento dei miei dati



Quimmo agency

Via galileo galilei 6
48018 Faenza (RA)

0299944698

Moncalieri
Prezzo: € 96.800
F
2
1
94



Descrizione:
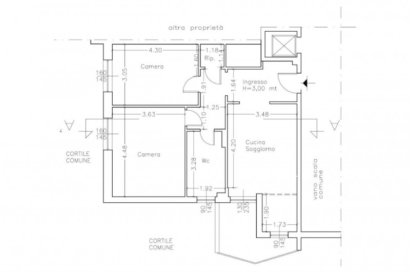
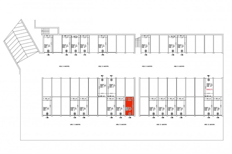
In zona nord-ovest di moncalieri, a ridosso del confine con torino, proponiamo in vendita un appartamento posto al terzo piano di un condominio di otto piani fuori terra, dotato di piano interrato destinato alle cantine. L'area è ottimamente collegata al capoluogo tramite linee urbane di autobus e dalla stazione ferroviaria di moncalieri, situata a soli 1,5 km, con comodi collegamenti verso torino porta nuova.caratteristiche dell'immobile- ingresso- disimpegno- tre vani luminosi- bagno- balcone- cantina al piano interrato- soffitta- box auto (sub. 10) compreso nella proprietàl'unità si presenta in condizioni manutentive discrete, offrendo un'ottima base per personalizzazioni e interventi di ammodernamento.punti di forza- zona comoda e ben collegata a torino- presenza di soffitta, cantina e box auto- spazi interni funzionali- piano intermedio con buona luminosità- ideale sia come abitazione principale sia come investimento




Caratteristiche immobile:
Codice inserzione: 1776394004
Rif. Annuncio: 2638558
Provincia: Torino
Comune: Moncalieri
Superficie (Mq) : 94 Mq.
Tipo immobile: Appartamento
Stato immobile: usato
Camere: 2
Bagni: 1
Terrazze: 1

Costi:
Prezzo € 96.800


Efficienza energetica:
Classe energetica: F