home page > Annunci immobiliari in Italia > Piemonte > Torino > Nichelino > Negozi uffici capannoni in vendita > Scheda immobile

Negozi uffici capannoni in vendita a Nichelino

COMPILA IL MODULO SOTTOSTANTE PER RICEVERE MAGGIORI INFORMAZIONI







Invia la richiesta ad altre agenzie
Accetto il trattamento dei miei dati



Home and business project

Corso galileo ferraris, 64
10121 Torino

3493905372    Riferimenti: Mauro Aglietto

Nichelino
Prezzo: € 607.500
7720
Piano terra



Descrizione:
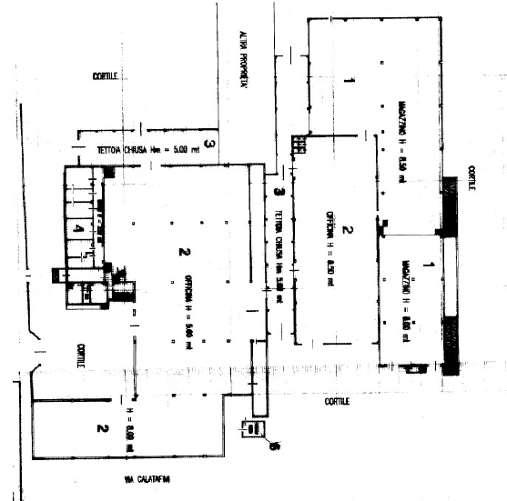
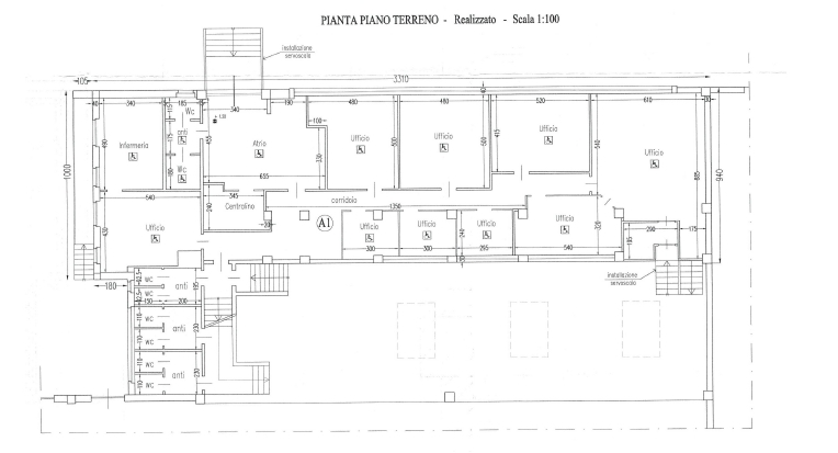
Rif: diritto di piena proprietà di fabbricato industriale con annessa palazzina uffici e servizi costituito da una serie di capannoni e tettoie chiuse. Gli immobili insistono su area urbana della consistenza di mq. 10.699le fotografie allegate hanno finalità puramente illustrative e potrebbero non rappresentare in modo esaustivo l'immobile. L'esattezza di tutti i dati pubblicati sarà verificata e confermata in sede di consulenza.se desidera valutare l'acquisto di un immobile in asta in totale trasparenza e sicurezza, si affidi alla nostra competenza e serietà. Offriamo un supporto completo al cliente, accompagnandolo a 360° lungo tutto il percorso tecnico e finanziario, dalla scelta dell'immobile alla partecipazione alla gara d'asta.contattaci per una consulenza gratuita presso il nostro studio. Gli immobili acquistati tramite aste giudiziarie sono mutuabili e finanziabili alle stesse condizioni di quelli presenti sul mercato libero.i nostri servizi ci dedichiamo con passione e professionalità a:aste giudiziariecompravendita immobiliare (residenziale, commerciale e industriale)cessione d'aziendail nostro obiettivo è offrire un servizio efficace, su misura e orientato ai risultati.nota per investitori. La nostra strategia si focalizza sull'acquisizione a forte sconto di crediti ipotecari e npl (non performing loans), oggi tra le opportunità di investimento più interessanti. Proponiamo due modalità operative:saldo e stralcio immobiliareasta pilotata remissiva stragiudiziale




Caratteristiche immobile:
Codice inserzione: 1767318945
Rif. Annuncio: 1381068/1593/4492565
Provincia: Torino
Comune: Nichelino
Superficie (Mq) : 7720 Mq.
Tipo immobile: Negozi uffici capannoni
Stato immobile: usato
Piano: Piano terra

Costi:
Prezzo € 607.500


Efficienza energetica: