home page > Annunci immobiliari in Italia > Piemonte > Torino > San Mauro Torinese > Negozi uffici capannoni in vendita > Scheda immobile

Negozi uffici capannoni in vendita a San Mauro Torinese

COMPILA IL MODULO SOTTOSTANTE PER RICEVERE MAGGIORI INFORMAZIONI







Invia la richiesta ad altre agenzie
Accetto il trattamento dei miei dati



Abilio s.p.a.

Via galileo galilei 6
48018 Faenza (RA)

0289741561    0546046748    0546046747    Riferimenti: Abilio S.p.A.

San Mauro Torinese
Prezzo: € 32.175
1
127



Descrizione:
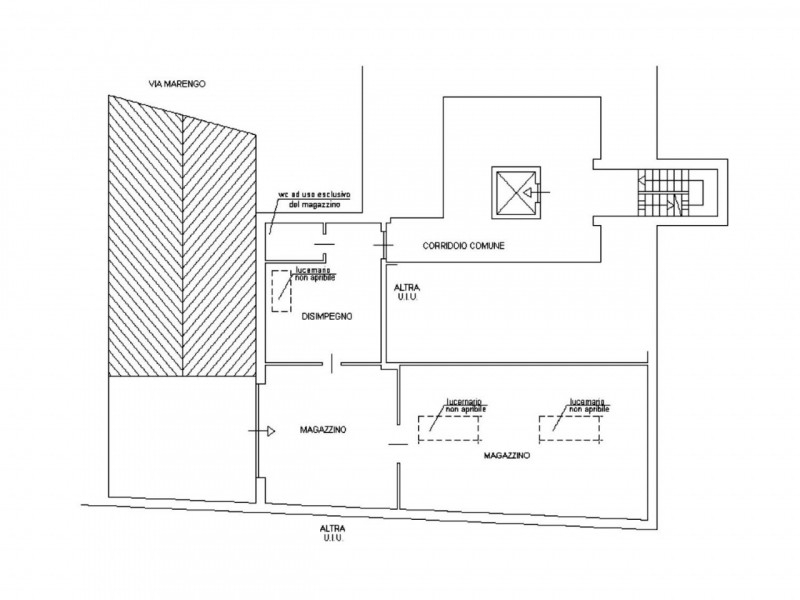
Quest'immobile viene venduto tramite asta online.magazzino al piano interrato sito a san mauro torinese (to), in via marengo n.10.trattasi di ampio magazzino situato al piano seminterrato di un edificio condominiale di quattro piani fuori terra oltre uno interrato, ubicato in zona semiperiferica a destinazione prevalentemente residenziale.il bene, dotato rampa carrabile ad uso esclusivo e collegamento interno al vano scala condominiale dotato di ascensore, è composto da due locali principali ad uso magazzino, oltre a disimpegno e bagno.gli ambienti presentano pavimentazione in cemento lisciato nelle aree di deposito e rivestimenti in ceramica nelle zone di servizio, sono presenti impianto elettrico fuori traccia, impianto idrico-sanitario e sistema di allarme antintrusione.per maggiori informazioni vedasi documentazione allegata.offerta minima: 32175 euro.quimmo.it: iniziativa tech del gruppo illimity specializzata nell'intermediazione digitale di beni immobili provenienti da tribunali, nuovi sviluppi immobiliari, financial institutions e libero mercato.da oltre 10 anni quimmo.it è il portale specializzato nella compravendita di immobili tramite asta giudiziaria. Il portale è infatti iscritto nel registro gestori della vendita telematica e nell'elenco dei siti web autorizzati allo svolgimento della pubblicità legale. Con quimmo puoi scegliere tra migliaia di immobili di ogni tipo e partecipare alle aste online per acquistare la soluzione più adatta alle tue esigenze.affidati all'esperienza decennale dei nostri esperti e richiedi l'assistenza gratuita per la presentazione e compilazione dell'offerta.contattaci subito.




Caratteristiche immobile:
Codice inserzione: 1770092594
Rif. Annuncio: 2537904
Provincia: Torino
Comune: San Mauro Torinese
Superficie (Mq) : 127 Mq.
Tipo immobile: Negozi uffici capannoni
Stato immobile: usato
Bagni: 1

Costi:
Prezzo € 32.175


Efficienza energetica: