Descrizione:
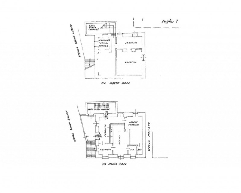
Riferimento: bp1056la porzione immobiliare è sita nella frazione pontegrande, a 1,5 km dal centro di bannio anzino (vb). Ci troviamo in via monte rosa, in un'area ben visibile e facilmente raggiungibile, caratterizzata da attività ricettive e commerciali, nei pressi del torrente anza. La porzione, attualmente sfitta, è parte di un immobile distribuito su tre piani, e ospitava in precedenza una filiale bancaria. Si compone di locali al piano terra e al piano interrato, e gode di una buona visibilità grazie alle finestre su strada.