home page > Annunci immobiliari in Italia > Piemonte > Vercelli > Serravalle Sesia > Terreni in vendita > Scheda immobile

Terreni in vendita a Serravalle Sesia

COMPILA IL MODULO SOTTOSTANTE PER RICEVERE MAGGIORI INFORMAZIONI







Invia la richiesta ad altre agenzie
Accetto il trattamento dei miei dati



Immobiliare botto borgosesia

Via vittorio veneto 13
13011 Borgosesia (VC)

01631907250    Riferimenti: Andrea Bellon

Serravalle Sesia
Prezzo: € 36.800
460



Descrizione:
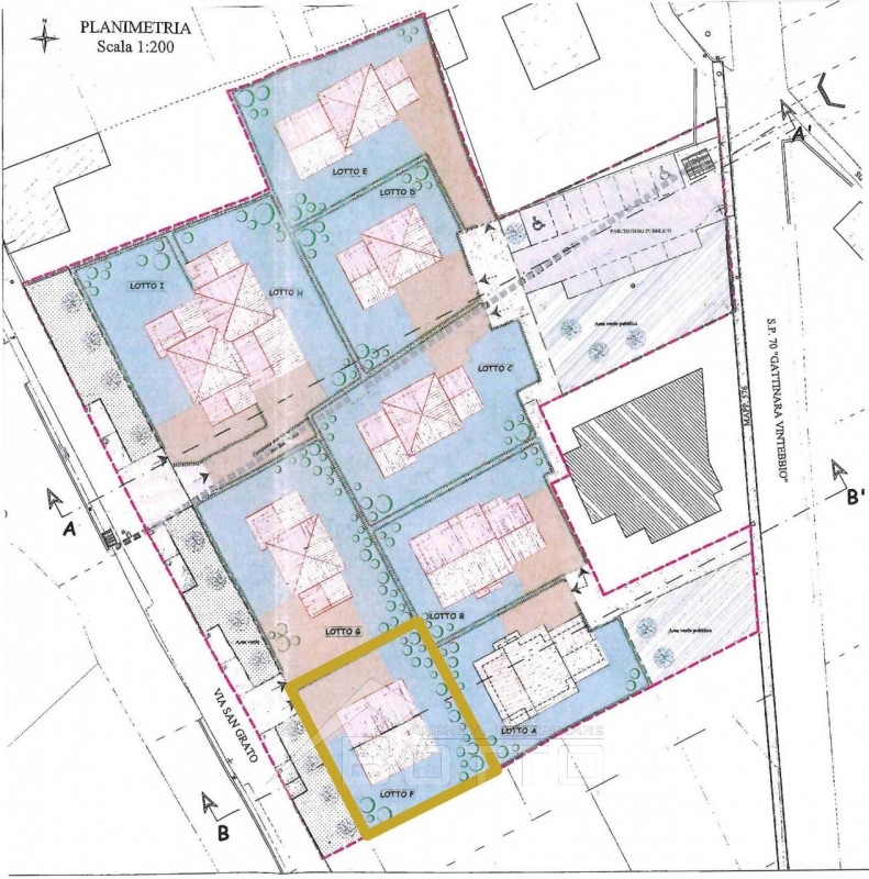
Questo terreno edificabile in vendita a serravalle sesia si trova nella frazione di vintebbio, in una zona residenziale di nuova edificazione, soleggiata e tranquilla, a due passi da tutti i servizi. si tratta di un lotto di 460 mq. Sul quale si può costruire una splendida villetta di due piani, di circa 100 mq per piano.gli oneri di urbanizzazione sono già stati versati il lotto è inoltre già predisposto con i pozzetti per luce, gas e acqua. per avere maggiori informazioni non esitate a chiamarci.




Caratteristiche immobile:
Codice inserzione: 1761274499
Rif. Annuncio: 3-SERTER2
Provincia: Vercelli
Comune: Serravalle Sesia
Zona: Vintebbio  
Superficie (Mq) : 460 Mq.
Tipo immobile: Terreni

Costi:
Prezzo € 36.800


Efficienza energetica:
Classe energetica: Immobile non soggetto all'obbligo di certificazione