home page > Annunci immobiliari in Italia > Puglia > Barletta-Andria-Trani > Andria > appartamenti in vendita > Scheda immobile

Appartamento in vendita a Andria

COMPILA IL MODULO SOTTOSTANTE PER RICEVERE MAGGIORI INFORMAZIONI







Invia la richiesta ad altre agenzie
Accetto il trattamento dei miei dati



Immobiliare castello

Via principe amedeo 2/b
76123 Andria (BT)

0883594973    3483642418    Riferimenti: Riccardo Lomuscio

Andria
Prezzo: € 120.000
G
4
2
130
2



Descrizione:
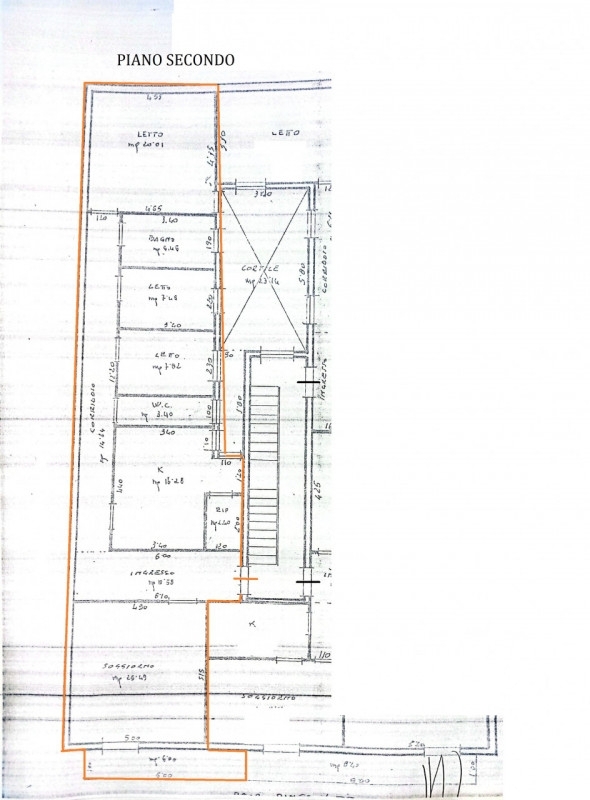
Proponiamo in vendita un luminoso appartamento al secondo piano, situato nel cuore del comune di andria. L'immobile si sviluppa su una superficie generosa di circa 130 mq ed è composto da ingresso accogliente, ampio disimpegno e sala con balcone a prospetto che regala piacevoli affacci esterni. La zona giorno include cucinino separato e tinello funzionale, ideali per la vita quotidiana della famiglia.la soluzione offre tre comodi vani letto, due bagni ben distribuiti e un pratico pozzo di luce interno che garantisce ariosità agli ambienti centrali dell'abitazione. Il contesto è quello di un piccolo condominio signorile senza ascensore ma caratterizzato da eleganti finiture delle parti comuni: pavimenti e scale sono rivestiti in marmo pregiato dalle tonalità chiare, pareti dai colori caldi e dettagli curati come vasi ornamentali o armadiature a muro lungo i corridoi interni.l'appartamento dispone inoltre della proprietà comune su porzione del lastrico solare al terzo piano ideale sia come area tecnica sia come spazio relax all'aperto. La posizione strategica consente facile accessibilità ai principali servizi cittadini (scuole, negozi, trasporti) rendendo questa proposta perfetta per famiglie numerose o chi desidera spazi versatili.non perdere l'occasione unica di vivere in uno degli angoli più tranquilli ma serviti di andria! per ulteriori informazioni o per fissare una visita non esitare a contattare la nostra agenzia: saremo lieti di accompagnarti alla scoperta della tua nuova casa.




Caratteristiche immobile:
Codice inserzione: 1769768294
Rif. Annuncio: A044
Provincia: Barletta-Andria-Trani
Comune: Andria
Superficie (Mq) : 130 Mq.
Tipo immobile: Appartamento
Stato immobile: usato
Piano: 2
Camere: 4
Bagni: 2
Terrazze: 1

Costi:
Prezzo € 120.000


Efficienza energetica:
Classe energetica: G
Riscaldamento: autonomo