0832402482 3202950248 Riferimenti: Antonucci Angelo
Descrizione:
Salento. Immediato hinterland di Lecce. In zona centrale del paese, intero stabile ad uso residenziale composto da due abitazioni, una al piano terra ed una al piano primo. Le abitazioni hanno ciascuna accessi indipendenti.
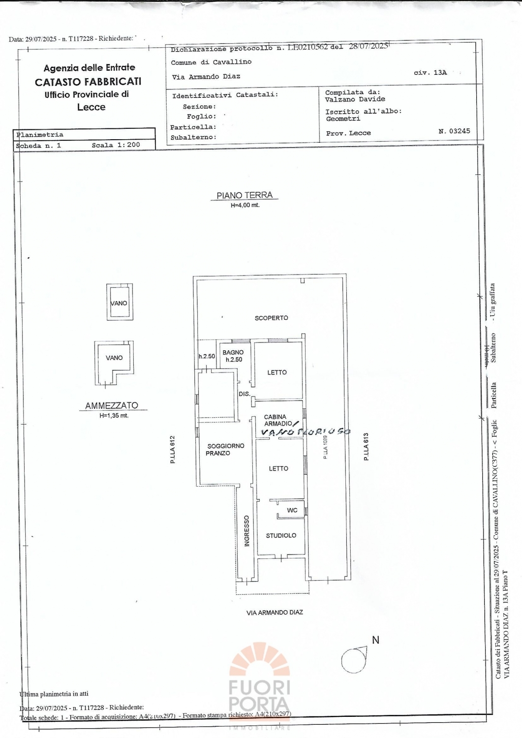
Il piano terra è composto da cinque vani oltre accessori più scoperto retrostante e latistante. Quest'ultimo sfocia su strada e permette il posteggio di almeno un paio di autovetture.
Il piano primo è composto da quattro vani oltre accessori più due verande (una allo stato interclusa) e due balconi (quello latistante da ultimare ed allo stato, intercluso).
Entrambe le abitazioni sono dotate di impianto di riscaldamento a metano, quella al piano primo però, ha una caldaia obsoleta da sostituire.
L'alloggio posto al piano terra è quasi interamente ristrutturato, quello al primo invece è da ristrutturare. APE n.d.
La soluzione potrebbe essere oggetto di acquisto congiunto genitori-figlio/a oppure fratelli/sorelle. Rappresenta anche valido affare per un eventuale investitore.
N.B.: Le abitazioni possono vendersi anche separatamente. Piano terra: € 125.000,00. Piano primo: € 85.000,00
Ti interessa? Non esitare a contattarci!
La vendita si intende sempre a corpo e non a misura. Le informazioni contenute nel presente annuncio sono puramente indicative e non costituiscono elemento contrattuale.
Per qualsiasi esigenza, chiamateci dal lunedì al venerdì h 9:00-13:00 e 15:30-20:30; sabato solo 9:00-13:00.
Servizi nei pressi dell'immobile:
Trasporti pubblici, supermercato, asilo nido, scuole, farmacia, bar, edicola, ristorante/trattoria, albergo, ufficio postale, chiesa, centro commerciale, palestra, lavanderia automatica.
Codice inserzione: | 1758360416 |
Rif. Annuncio: | 1530 |
Provincia: | Lecce |
Comune: | Cavallino |
Superficie (Mq) : | 304 Mq. |
Tipo immobile: | Case e ville indipendenti |
Stato immobile: | usato |
Piano: | Su due livelli |
Camere: | 4 |
Stato al rogito: | Libero |
Esposizione: | Sud-Ovest |
Posti auto scoperti: | 2 posti auto |
Giardino : | 123 Mq. |
Tipologia giardino : | Privato |
Bagni: | 4 |
Prezzo | € 210.000 |
Classe energetica: | In fase di definizione |
Tipologia riscaldamento: | Metano |