home page > Annunci immobiliari in Italia > Puglia > Lecce > Galatina > Negozi uffici capannoni in vendita > Scheda immobile

Negozi uffici capannoni in vendita a Galatina

COMPILA IL MODULO SOTTOSTANTE PER RICEVERE MAGGIORI INFORMAZIONI







Invia la richiesta ad altre agenzie
Accetto il trattamento dei miei dati



Immobili all'asta

Viale sabotino 4
20121 Milano

0280888267    Riferimenti: Ivano De Natale

Galatina
Prezzo: € 46.634
F
1
115
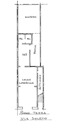
Piano terra



Descrizione:
Negozio all'asta in via di soleto, galatina (le)si propone il diritto di piena proprietà su immobile ad uso commerciale sito in via di soleto, ne comune di galatina (le).nello specifico si tratta di un negozio al piano terra, si compone di:- unico ambiente- deposito- antibagno- bagno- disimpegno- ripostiglio- scoperto sul retro.l'unità risulta avere una superficie complessiva di circa 115mq.dati catastalifoglio 75, particella 1734, sub 6, cat. C/1, classe 5, cons. 51mq, rendita 1.311,70 euro. chi siamoimmobiliallasta.it aiuta le persone a comprare casa all'asta e migliorare la qualità della loro vita senza correre rischi, grazie ad una piattaforma specializzata in aste immobiliari sviluppata intorno alle vere esigenze di chi cerca casa all'asta e ad un team di 30 professionisti esperti dedicato, che ti guida passo passo in un acquisto sicuro e certificato da una tripla garanzia sull'immobile e sul servizio. a differenza delle agenzie troverai: + varietà: gestiamo migliaia di immobili ogni mese+ aiuto concreto: consulenti focalizzati nell'aiutarti a raggiungere il tuo obiettivo+ tranquillità: tripla garanzia che ti tutela da ogni rischio sull'acquistoalcuni risultati oggettivi nell'ultimo anno e mezzo:- +500 clienti portati all'asta - +200 case aggiudicate, per un valore totale di 15 milioni- +7 milioni risparmiati nell'acquistocontattaci subito per parlare con uno dei nostri consulenti che ti aiuterà a trovare la casa all'asta senza correre rischi.




Caratteristiche immobile:
Codice inserzione: 1759718348
Rif. Annuncio: ST12050
Provincia: Lecce
Comune: Galatina
Superficie (Mq) : 115 Mq.
Tipo immobile: Negozi uffici capannoni
Stato immobile: usato
Anno costruzione/ristrutturazione: 1960
Piano: Piano terra
Bagni: 1

Costi:
Prezzo € 46.634


Efficienza energetica:
Classe energetica: F
Indice di prestazione energetica (EPgl): 175 kWh/mc annui