home page > Annunci immobiliari in Italia > Puglia > Lecce > Ruffano > Attività commerciali in vendita > Scheda immobile

Attività commerciali in vendita a Ruffano

COMPILA IL MODULO SOTTOSTANTE PER RICEVERE MAGGIORI INFORMAZIONI







Invia la richiesta ad altre agenzie
Accetto il trattamento dei miei dati



Casa service plus

Via roma 8
73046 Matino (LE)

800303036

Ruffano
Prezzo: € 200.000
G
2
1
65
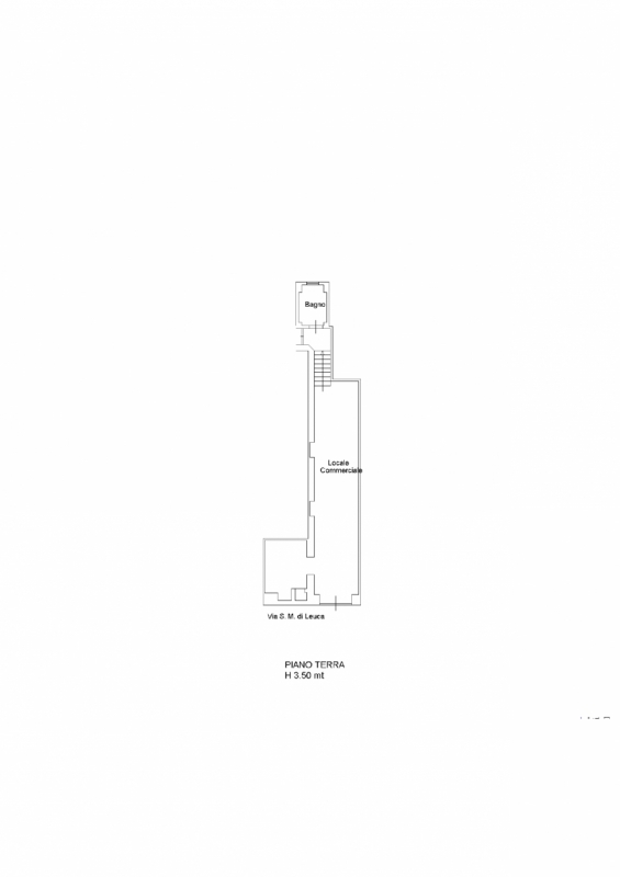
Piano terra



Descrizione:
Cedesi in ruffano, pluriennale attività di vendita al dettaglio di articoli per fumatori, valori bollati, giochi, lotterie, ricariche telefoniche, giornali, cartoleria, oggettistica e servizi telematici a pagamento.l'attività che comprende altresù una sala slot, vetrina bevande e distributore automatico, è ubicata in zona ad alto traffico di veicoli e pedoni e da molti anni è il punto di riferimento per la popolazione locale nonché per i flussi di transito.possibilità di locazione del locale attualmente adibito e perfettamente manutenuto. ottima opportunità di investimento/rendita.




Caratteristiche immobile:
Codice inserzione: 1758509439
Rif. Annuncio: REA-240 COM
Provincia: Lecce
Comune: Ruffano
Superficie (Mq) : 65 Mq.
Tipo immobile: Attività commerciali
Stato immobile: ristrutturato
Anno costruzione/ristrutturazione: 1920
Piano: Piano terra
Camere: 2
Bagni: 1

Costi:
Prezzo € 200.000


Efficienza energetica:
Classe energetica: G