Descrizione:
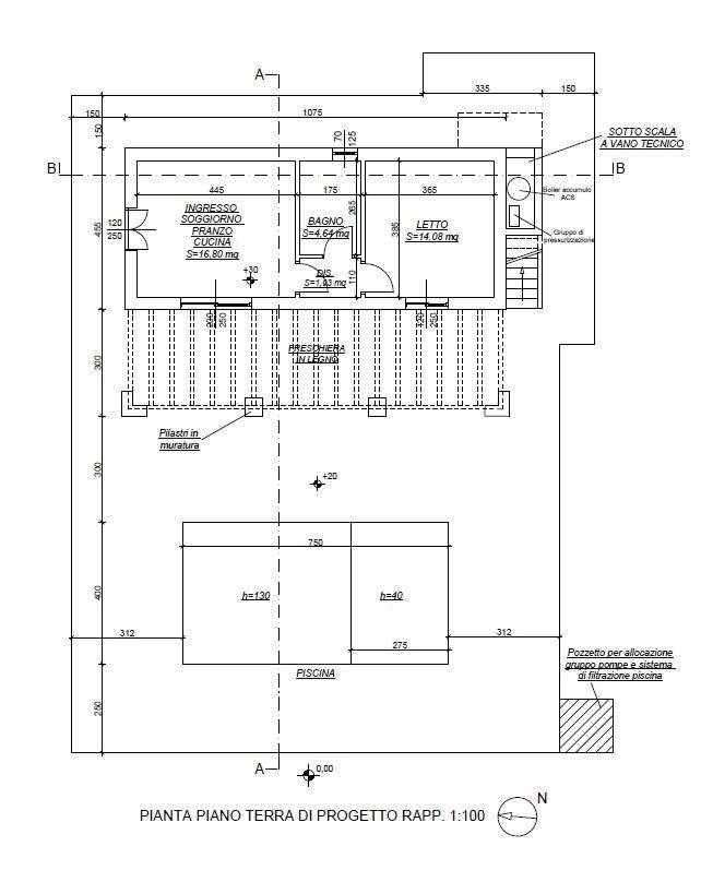
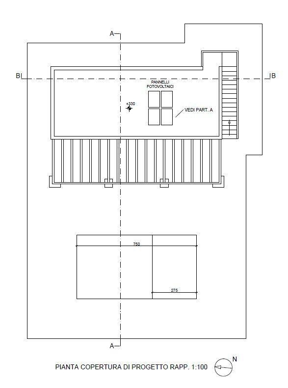
A soli 750 metri dalla costa di torre borraco, l'agenzia immobiliari riunite di nanna propone in vendita una villa allo stato rustico che si trova all'interno di un ampio terreno recintato di circa 5.000 mq.l'abitazione, tutta su un piano, è di 50 mq ed è composta da: ampio ingresso-soggiorno con angolo cottura open space, camera da letto, bagno, vano deposito. All'esterno la possibilità di una comoda e ampia freschiera in legno. lo stato rustico ti offre la possibilità di personalizzare ogni dettaglio, dal layout interno fino agli spazi esterni. nel progetto è già stata autorizzata la realizzazione di una piscina.nel prezzo di vendita è inclusa la realizzazione della cisterna, della fossa imhoff e il pagamento degli oneri di urbanizzazione e di progettazione. un'opportunità rara per chi sogna di vivere a stretto contatto con la natura, senza rinunciare alla vicinanza al mare. Una casa che aspetta solo di essere trasformata nel tuo rifugio personale.contattaci al più presto per ulteriori informazioni o per una visita! classe energetica: g