home page > Annunci immobiliari in Italia > Sardegna > Sassari > Alghero > Negozi uffici capannoni in vendita > Scheda immobile

Negozi uffici capannoni in vendita a Alghero

COMPILA IL MODULO SOTTOSTANTE PER RICEVERE MAGGIORI INFORMAZIONI







Invia la richiesta ad altre agenzie
Accetto il trattamento dei miei dati



Kr mediazioni - immobiliare in sardegna

Strada vicinale carrabuffas 46
07041 Alghero (SS)

3460289149

Alghero
Prezzo: € 145.000
2
156



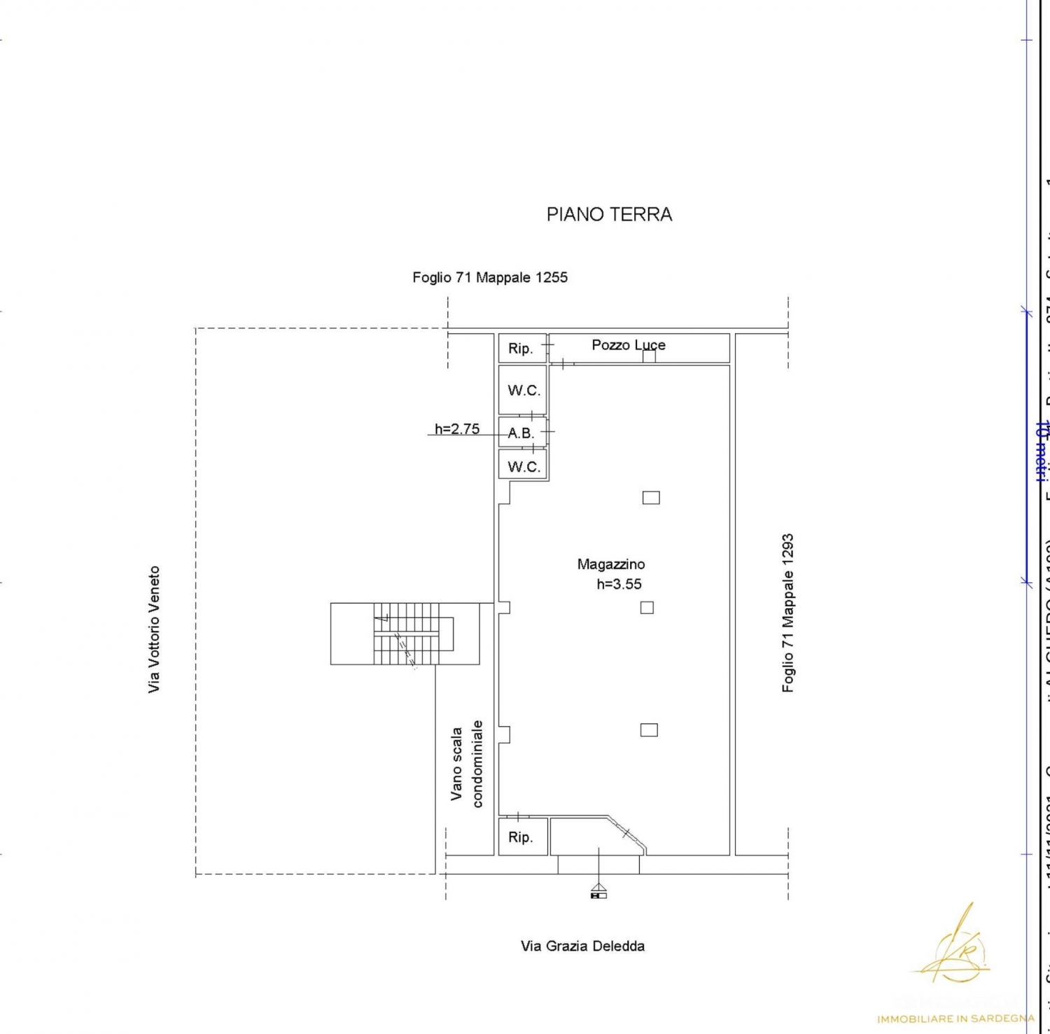
Descrizione:
Locale commerciale in vendita alghero, via grazia deledda €145.000ad alghero, in via grazia deledda, a pochi passi da via sant'agostino e non lontano dal centro, proponiamo in vendita ampio locale commerciale di 156 mq con una vetrina fronte strada e doppi servizi.l'immobile si presenta come una soluzione versatile, adatta a numerose attività grazie alla sua ampia metratura e alla posizione strategica.ideale per:· locale deposito o magazzino per attività commerciali· laboratorio artigianale· officina o autolavaggio· palestra, centro fitness o spazio polifunzionale°?? caratteristiche principali:· superficie: 156 m· 1 vetrina su strada· 2 bagni· facile accesso e buona visibilità· zona servita, con parcheggi nelle vicinanze°?° prezzo di vendita: €145.000un'ottima opportunità per chi cerca uno spazio ampio e funzionale da acquistare in una zona ben collegata e in crescita.




Caratteristiche immobile:
Codice inserzione: 1774503571
Rif. Annuncio: 28
Provincia: Sassari
Comune: Alghero
Superficie (Mq) : 156 Mq.
Tipo immobile: Negozi uffici capannoni
Stato immobile: recente
Stato al rogito: Libero
Bagni: 2

Costi:
Prezzo € 145.000


Efficienza energetica: