home page > Annunci immobiliari in Italia > Sardegna > Sassari > Porto Torres > Case e ville indipendenti in vendita > Scheda immobile

Case e ville indipendenti in vendita a Porto Torres

COMPILA IL MODULO SOTTOSTANTE PER RICEVERE MAGGIORI INFORMAZIONI







Invia la richiesta ad altre agenzie
Accetto il trattamento dei miei dati



Immobiliare porto torres srls

Corso vittorio emanuele 60
07046 Porto Torres (SS)

079513268    Riferimenti: Davide

Porto Torres
Prezzo: € 90.000
2
1
180



Descrizione:
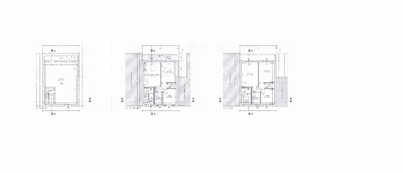
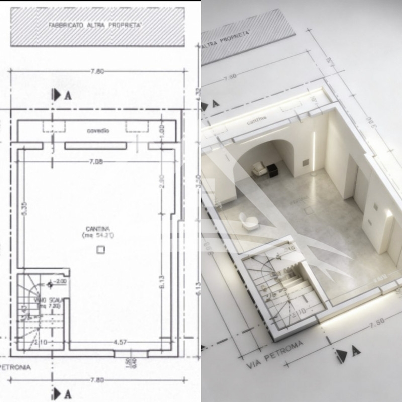
Zona centrale fabbricato diritto da ristrutturare | ottimo investimentoin posizione centrale, proponiamo in vendita fabbricato diritto, ideale come investimento o per la realizzazione di un'abitazione indipendente.come da progetto di massima (vedi prospetto in foto), l'immobile offre la possibilità di essere sviluppato su tre livelli cosù composti:cantina al piano seminterratopiano terra con cucina, soggiorno, cortile interno e locale depositopiano primo con camera da letto, cameretta, bagno e verandala posizione strategica, unita alla versatilità degli spazi, rende la soluzione particolarmente interessante per uso residenziale o per operazioni a reddito.prezzo richiesto: € 90.000ulteriori informazioni disponibili in agenzia. Visite previo appuntamento.




Caratteristiche immobile:
Codice inserzione: 1766030923
Rif. Annuncio: V.Petronia 129
Provincia: Sassari
Comune: Porto Torres
Superficie (Mq) : 180 Mq.
Tipo immobile: Case e ville indipendenti
Camere: 2
Bagni: 1
Terrazze: 1

Costi:
Prezzo € 90.000


Efficienza energetica: