home page > Annunci immobiliari in Italia > Sicilia > Catania > Aci Catena > Case e ville indipendenti in vendita > Scheda immobile

Case e ville indipendenti in vendita a Aci Catena

COMPILA IL MODULO SOTTOSTANTE PER RICEVERE MAGGIORI INFORMAZIONI







Invia la richiesta ad altre agenzie
Accetto il trattamento dei miei dati



Etikanze' srls

Via s. Vincenzo barbagallo 159
95024 Acireale (CT)

095444525    3498731730    Riferimenti: Sciuto Lina L.

Aci Catena
Prezzo: € 49.000
G
2
1
103
Piano terra



Descrizione:
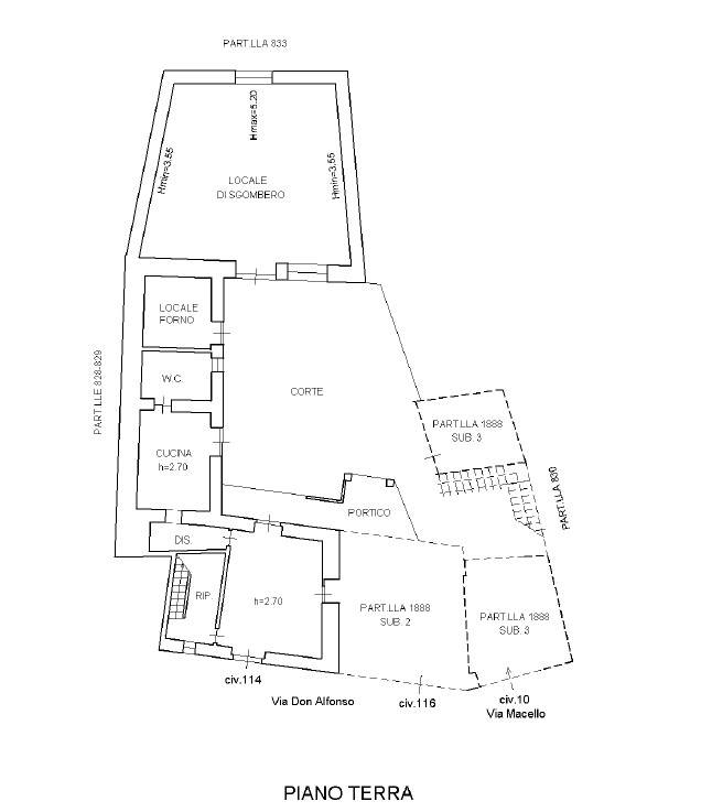
Casa singola, porzione di palazzo storico con possibilità di acquisire l'intero stabilenel cuore di aci catena, con ingresso da via don alfonso 114, proponiamo in vendita una particella di 3 di un palazzo storico, una soluzione interessante per chi desidera investire in un immobile dal grande potenziale di valorizzazione.la proprietà si compone di una porzione abitativa e una corte, con una superficie catastale lorda di circa 103 mq.gli spazi offrono una base ideale per realizzare una residenza di charme, uno studio professionale o una piccola struttura ricettiva, valorizzando l'autenticità del contesto storico.un investimento flessibilel'acquisto può essere definito attraverso un contratto preliminare, mentre l'atto definitivo verrà stipulato in una data da concordare, contestualmente alla definizione delle compravendite delle altre due particelle che compongono il palazzo.questa modalità offre un vantaggio strategico:l'acquirente potrà valutare anche l'estensione dell'investimento all'intero stabile, integrando la quota relativa alle altre due unità.perché è un'opportunità interessantepossibilità di acquistare una singola porzione con investimento contenutoopzione di acquisire l'intero palazzo per un progetto più ampiocontesto storico con potenziale di valorizzazione immobiliaresoluzione adatta a investitori, operatori turistici o professionistiuna proposta ideale per chi sa riconoscere il valore di un immobile che può crescere nel tempo e trasformarsi in un progetto immobiliare completo.per aiutarvi a fare una scelta consapevole e rispettare il tempo di tutti, suggeriamo sempre di visionare prima in autonomia la posizione e l'ambiente circostante dell'immobile. Se questi elementi risulteranno in linea con le vostre esigenze, saremo felici di accompagnarvi personalmente alla visita interna o di invitarvi a un open house.'etikanze crede nella collaborazione tra professionisti e coopera con tutte le agenzie immobiliari abilitate per offrire il miglior servizio ai clienti.'per informazioni e approfondimenti:whatsapp etikanzé dove la casa incontra l'armonia classe energetica: g epi: 150,96 kwh/m2 anno




Caratteristiche immobile:
Codice inserzione: 1772599838
Rif. Annuncio: 10093RA95553-3017
Provincia: Catania
Comune: Aci Catena
Superficie (Mq) : 103 Mq.
Tipo immobile: Case e ville indipendenti
Stato immobile: usato da riattare
Piano: Piano terra
Camere: 2
Bagni: 1

Costi:
Prezzo € 49.000


Efficienza energetica:
Classe energetica: G
Indice di prestazione energetica (EPgl): 150.96 kWh/mq annui