home page > Annunci immobiliari in Italia > Sicilia > Catania > Acireale > appartamenti in vendita > Scheda immobile

Appartamento in vendita a Acireale

COMPILA IL MODULO SOTTOSTANTE PER RICEVERE MAGGIORI INFORMAZIONI







Invia la richiesta ad altre agenzie
Accetto il trattamento dei miei dati



Abilio s.p.a.

Via galileo galilei 6
48018 Faenza (RA)

0289741561    0546046748    0546046747    Riferimenti: Abilio S.p.A.

Acireale
Prezzo: € 54.000
3
1
126



Descrizione:
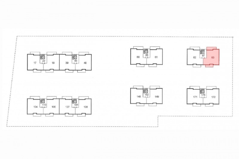
Quest'immobile viene venduto tramite asta online.appartamento ad acireale (ct), via degli argentieri acesi 20. La proprietà è situata nella palazzina d. Questo appartamento al terzo piano offre un ambiente residenziale confortevole e ben illuminato. Internamente è composto da un ampio locale ingresso-soggiorno con angolo cottura, un bagno, una lavanderia e tre camere da letto. Tutti i locali sono dotati di aperture che garantiscono la necessaria illuminazione e areazione naturale. I pavimenti sono in gres ceramico, le pareti sono dipinte con idropittura e i servizi igienici sono rivestiti in ceramica. Gli infissi esterni sono in alluminio a taglio termico con persiane orientabili. L'appartamento possiede due ampi balconi sui prospetti principali. Il box auto di pertinenza, ubicato al piano seminterrato, è accessibile tramite una rampa laterale. Il garage presenta un rivestimento a pavimento in piastrelle in graniglia di marmo. Immobile occupato.per maggiori dettagli consultare i documenti allegati. Bene descritto in perizia come lotto n° 8appartamento (sub 83): 110 mqbox auto (sub 69): 18 mqsono compresi nella vendita i proporzionali diritti di comproprietà su beni comuni e spazi di uso comune.offerta minima: 54000 euro.quimmo.it: iniziativa tech del gruppo illimity specializzata nell'intermediazione digitale di beni immobili provenienti da tribunali, nuovi sviluppi immobiliari, financial institutions e libero mercato.da oltre 10 anni quimmo.it è il portale specializzato nella compravendita di immobili tramite asta giudiziaria. Il portale è infatti iscritto nel registro gestori della vendita telematica e nell'elenco dei siti web autorizzati allo svolgimento della pubblicità legale. Con quimmo puoi scegliere tra migliaia di immobili di ogni tipo e partecipare alle aste online per acquistare la soluzione più adatta alle tue esigenze.affidati all'esperienza decennale dei nostri esperti e richiedi l'assistenza gratuita per la presentazione e compilazione dell'offerta.contattaci subito.




Caratteristiche immobile:
Codice inserzione: 1759891978
Rif. Annuncio: 2516032
Provincia: Catania
Comune: Acireale
Superficie (Mq) : 126 Mq.
Tipo immobile: Appartamento
Stato immobile: usato
Anno costruzione/ristrutturazione: 2015
Camere: 3
Garage: Singolo
Bagni: 1
Terrazze: 2

Costi:
Prezzo € 54.000


Efficienza energetica:
Riscaldamento: autonomo