0289741561 0546046748 0546046747 Riferimenti: Abilio S.p.A.
Descrizione:
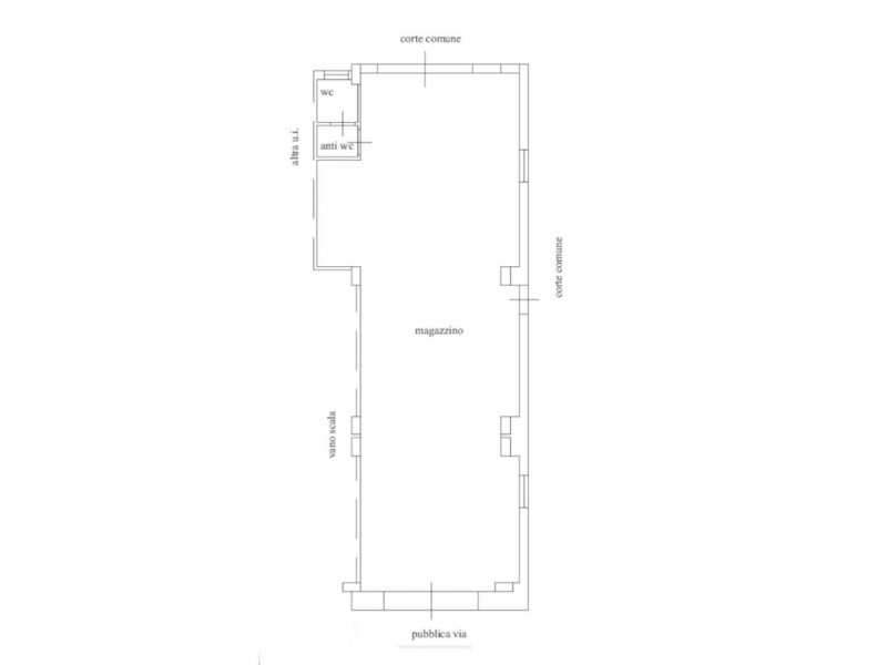
Quest'immobile viene venduto tramite asta online.magazzino al piano terra sito a capo d'orlando (me), in via consolare antica.trattasi di locale al piano terra di circa attualmente adibito a magazzino, composto da un grande vano principale, un servizio igienico con anti-wc e presenta tre accessi: uno da portoncino su corte comune e due da serrande, di cui una fronte strada pubblica e una fronte corte.la struttura è in cemento armato con tamponamenti in laterizio, infissi in alluminio e porte interne tamburate in legno. I locali sono pavimentati con piastrelle e il bagno è rivestito fino a 2 metri d'altezza. L'altezza interna è di circa 3,40 m. L'immobile si presenta in discrete condizioni generali, con segni di normale usura e alcune tracce di umidità alla base di alcuni pilastri.il bene risulta non conforme ma regolarizzabile, per maggiori informazioni vedasi documentazione allegata.quimmo.it: iniziativa tech del gruppo illimity specializzata nell'intermediazione digitale di beni immobili provenienti da tribunali, nuovi sviluppi immobiliari, financial institutions e libero mercato.da oltre 10 anni quimmo.it è il portale specializzato nella compravendita di immobili tramite asta giudiziaria. Il portale è infatti iscritto nel registro gestori della vendita telematica e nell'elenco dei siti web autorizzati allo svolgimento della pubblicità legale. Con quimmo puoi scegliere tra migliaia di immobili di ogni tipo e partecipare alle aste online per acquistare la soluzione più adatta alle tue esigenze.affidati all'esperienza decennale dei nostri esperti e richiedi l'assistenza gratuita per la presentazione e compilazione dell'offerta.contattaci subito.
| Codice inserzione: | 1762141806 |
| Rif. Annuncio: | 2537487 |
| Provincia: | Messina |
| Comune: | Capo d'Orlando |
| Superficie (Mq) : | 110 Mq. |
| Tipo immobile: | Garage |
| Stato immobile: | usato |
| Camere: | 1 |
| Bagni: | 1 |
| Prezzo | € 52.000 |