home page > Annunci immobiliari in Italia > Sicilia > Messina > Malfa > Case e ville a schiera in vendita > Scheda immobile

Case e ville a schiera in vendita a Malfa

COMPILA IL MODULO SOTTOSTANTE PER RICEVERE MAGGIORI INFORMAZIONI







Invia la richiesta ad altre agenzie
Accetto il trattamento dei miei dati



Point immobiliare

Via dei mille 271
98121 Messina

0906512375

Malfa
Prezzo: € 135.000
G
2
1
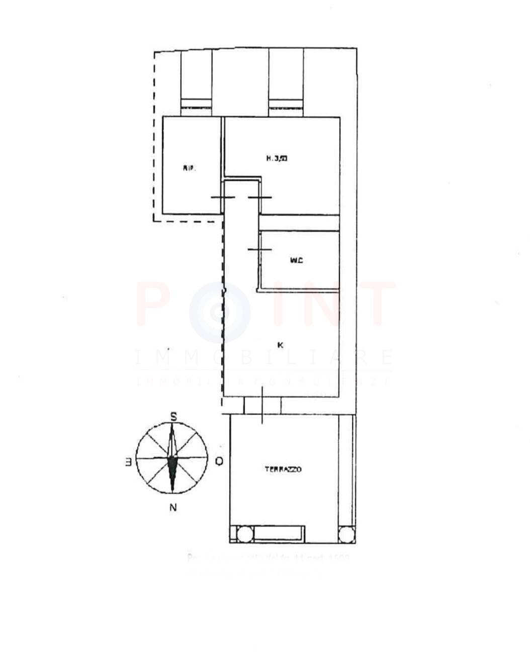
63
Piano terra



Descrizione:
Splendido appartamento in villetta in vendita con ingresso indipendente e tipica architettura eoliana. L'appartamento dotato di riscaldamento autonomo, dispone di una comoda cucina, camera matrimoniale, cameretta e servizio, oltre una spaziosa veranda con una vista mare spettacolare. La proprietà include una cisterna per la raccolta dell'acqua e una piccola aiuola antistante. posizionata in zona panoramica del comune di malfa, la casa regala un'atmosfera unica e affascinante con vista sul mare mozzafiato. Non ti resta che visitarla insieme a noi! contattaci subito per ulteriori informazioni e per organizzare una visita. Classe energetica: g




Caratteristiche immobile:
Codice inserzione: 1772077845
Rif. Annuncio: 6235RV75503
Provincia: Messina
Comune: Malfa
Superficie (Mq) : 63 Mq.
Tipo immobile: Case e ville a schiera
Piano: Piano terra
Camere: 2
Bagni: 1

Costi:
Prezzo € 135.000


Efficienza energetica:
Classe energetica: G
Riscaldamento: autonomo