home page > Annunci immobiliari in Italia > Sicilia > Ragusa > Scicli > Case e ville indipendenti in vendita > Scheda immobile

Case e ville indipendenti in vendita a Scicli

COMPILA IL MODULO SOTTOSTANTE PER RICEVERE MAGGIORI INFORMAZIONI







Invia la richiesta ad altre agenzie
Accetto il trattamento dei miei dati



Cannella srls

Cso umberto i°, 85
97018 Scicli (RG)

0932834280

Scicli
Prezzo: € 450.000
G
5
4
400



Descrizione:
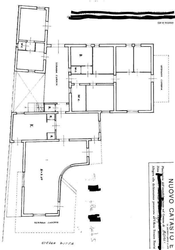
In vendita a scicli, in un contesto civile di grande prestigio, proponiamo una splendida villa di 400 mq situata al piano terra. Questa affascinante proprietà, caratterizzata da ampi spazi e un design elegante, è composta da 12 vani che offrono una versatilità unica per soddisfare ogni esigenza abitativa. La villa dispone di 5 camere da letto, perfette per garantire il massimo comfort e privacy, e 4 bagni moderni, ideali per famiglie numerose o per ospiti.uno dei punti di forza di questa villa è la grande terrazza di 400 mq al primo piano, che offre un'area esterna perfetta per momenti di relax, cene all'aperto e per godere di una vista panoramica sul meraviglioso paesaggio circostante. La classe energetica g indica la necessità di eventuali interventi per migliorare l'efficienza energetica, ma la struttura si presenta in buone condizioni e pronta per essere abitata.situata in una zona tranquilla e ben servita, la villa rappresenta un'ottima opportunità per chi cerca un'abitazione spaziosa in una delle località più affascinanti della sicilia. Non perdere l'occasione di visitare questa proprietà unica, ideale per famiglie o come investimento per una casa vacanze. Contattaci per maggiori informazioni e per organizzare una visita! classe energetica: g epi: 344,99 kwh/m2 anno




Caratteristiche immobile:
Codice inserzione: 1769144130
Rif. Annuncio: Villa Balatelle
Provincia: Ragusa
Comune: Scicli
Zona: Scicli  
Superficie (Mq) : 400 Mq.
Tipo immobile: Case e ville indipendenti
Camere: 5
Bagni: 4
Terrazze: 1

Costi:
Prezzo € 450.000


Efficienza energetica:
Classe energetica: G
Indice di prestazione energetica (EPgl): 344.99 kWh/mq annui