home page > Annunci immobiliari in Italia > Sicilia > Trapani > Marsala > Case e ville indipendenti in vendita > Scheda immobile

Case e ville indipendenti in vendita a Marsala

COMPILA IL MODULO SOTTOSTANTE PER RICEVERE MAGGIORI INFORMAZIONI







Invia la richiesta ad altre agenzie
Accetto il trattamento dei miei dati



Casaalmar

Via normanni , 32
91025 Marsala (TP)

338.8288978    3388288978    Riferimenti: Mario Rallo

Marsala
Prezzo: € 90.000
G
1
75



Descrizione:
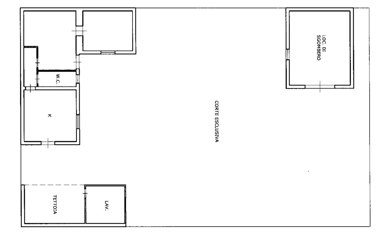
Vendesi unità immobiliare su un unica elevazione di circa 75 mq in contrada terrenove a marsala con annesso garage di 30 mq oltre vano lavanderia.l immobile, in discreto stato d uso, con circa 900 mq di giardino, è composto da ampia cucina, camera matrimoniale, soggiorno e un servizio con doccia oltre garage e lavanderia. Con pozzo e totalmente indipendente.classe energetica: g




Caratteristiche immobile:
Codice inserzione: 1774224750
Rif. Annuncio: V000517
Provincia: Trapani
Comune: Marsala
Superficie (Mq) : 75 Mq.
Tipo immobile: Case e ville indipendenti
Camere: 1

Costi:
Prezzo € 90.000


Efficienza energetica:
Classe energetica: G