home page > Annunci immobiliari in Italia > Toscana > Arezzo > Capolona > Terreni in vendita > Scheda immobile

Terreni in vendita a Capolona

COMPILA IL MODULO SOTTOSTANTE PER RICEVERE MAGGIORI INFORMAZIONI







Invia la richiesta ad altre agenzie
Accetto il trattamento dei miei dati



Piazza carducci

Piazza carducci, 3
52010 Subbiano (AR)

3387112986    0575488081    3387112986

Capolona
Prezzo: € 150.000
1056



Descrizione:
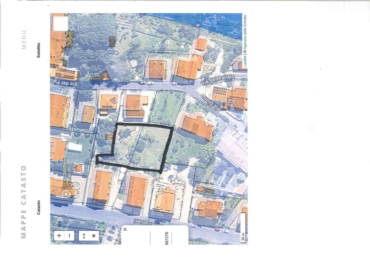
Capolona paese proponiamo in vendita un lotto di terreno edificabile posto all'interno di un area residenziale con ottima viabilità di accesso. Il lotto di terreno è situato vicino alla stazione ferroviaria e vicino a tutte le attività principali. Ottima occasione per impresari edili per la costruzione di appartamenti, ma anche adatto a privati per costruire casa singola o bifamiliare.mq edificabili del lotto 836mc edificabili 2259classe energetica:




Caratteristiche immobile:
Codice inserzione: 1774570252
Rif. Annuncio: V000661
Provincia: Arezzo
Comune: Capolona
Superficie (Mq) : 1056 Mq.
Tipo immobile: Terreni

Costi:
Prezzo € 150.000


Efficienza energetica: