Descrizione:
Tegoleto. Laboratorio artigianale di 290 mq con resede privato e impianto fotovoltaico da 15kW.
Fabbricato degli anni '90 in ottime buone condizioni di manutenzione, ubicato in ottima posizione caratterizzata dalla massima visibilità lungo una delle strade principali della zona.
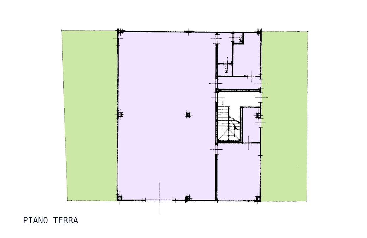
Utilizzato fino al 2025 da un'azienda operante nel settore della moda, è situato al pianterreno e comprende, oltre al locale principale, un ampio vano uso ufficio, un locale adibito a mensa e servizi igienici. Esternamente è corredato da un ampio resede privato di circa 100 mq con accesso dal parcheggio condominiale adiacente al fabbricato. Ulteriori posti auto riservati riservati all'immobile in oggetto sono presenti all'interno dello stesso parcheggio.
Sulla copertura dell'edificio è installato un potente impianto fotovoldaico da 15 kw al servizio del laboratorio, che oltre a rendere l'immobile completamente autosufficienti dal punto di vista energetico, consente l'immissione in rete del surplus di energia prodotta, con un ricavo annuale di circa 6.000 euro garantito fino al 2029. Successivamente al 2029 l'energia immessa in rete sarà pagata a prezzo di mercato (oppure immagazzinata mediante l'installazione di un impianto di accumulo). Pannelli di ottima qualità, con resa ancora molto vicina a quella originaria.
Consegna immediata.
Attestato di prestazione energetica in corso di redazione.