home page > Annunci immobiliari in Italia > Toscana > Arezzo > Montevarchi > Case e ville indipendenti in vendita > Scheda immobile

Case e ville indipendenti in vendita a Montevarchi

COMPILA IL MODULO SOTTOSTANTE PER RICEVERE MAGGIORI INFORMAZIONI







Invia la richiesta ad altre agenzie
Accetto il trattamento dei miei dati



Centro immobiliare valdarno s.r.l.

Via dante 1
52025 Montevarchi (AR)

055982550    Riferimenti: Giancarlo Riccucci

Montevarchi
Prezzo: € 390.000
A4
3
2
130



Descrizione:
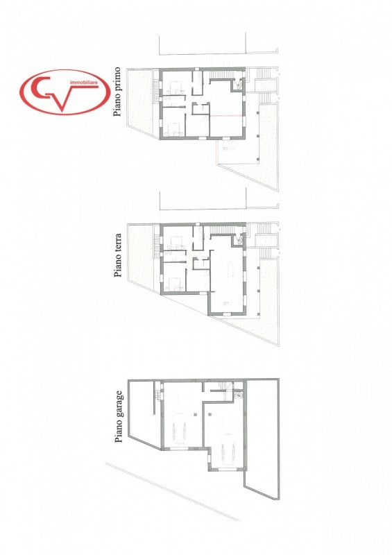
Se stai cercando un'abitazione moderna e confortevole, questa villa di nuova costruzione nel cuore della zona residenziale di montevarchi è l'opportunità che fa per te.con una superficie generosa di 130 mq, questa villa si distingue per il suo design all'avanguardia e la sua efficienza energetica. Insonorizzata e antisismica, rappresenta un esempio paradigmatico delle più recenti innovazioni edilizie. L'immobile è costituito da due unità disposte su un unico piano, garantendo massima comodità nella fruizione degli spazi.l'unità al piano primo offre un'ampia zona giorno versatile con bel terrazzo; la casa comprende anche tre camere: due matrimoniali accoglienti ed una singola perfetta per ospiti o come studio. Il disimpegno ben organizzato facilita la distribuzione dei vari ambienti rendendoli funzionali ed accoglienti.un valore aggiunto sono gli ampi spazi sottostanti adibiti a garage con accesso diretto dall'interno della villa cosù come aree pluriuso ideali per soddisfare ogni tua esigenza di storage o hobby creativi.completa l'offerta un giardino privato dove potrai goderti momenti di relax all'aperto immerso nel verde circostante. Situata in una tranquilla area residenziale, avrai facile accesso ai servizi locali, scuole e trasporti pubblici oltre alla bellezza del paesaggio toscano tutto intorno.non perdere l'occasione di vivere in questo angolo incantevole! contatta subito la nostra agenzia per maggiori informazioni e prenotare una visita.




Caratteristiche immobile:
Codice inserzione: 1774323447
Rif. Annuncio: 7564
Provincia: Arezzo
Comune: Montevarchi
Zona: Pestello  
Superficie (Mq) : 130 Mq.
Tipo immobile: Case e ville indipendenti
Stato immobile: nuovo
Camere: 3
Garage: Doppio
Bagni: 2
Terrazze: 2

Costi:
Prezzo € 390.000


Efficienza energetica:
Classe energetica: A4
Riscaldamento: autonomo