home page > Annunci immobiliari in Italia > Toscana > Firenze > Barberino di Mugello > Negozi uffici capannoni in vendita > Scheda immobile

Negozi uffici capannoni in vendita a Barberino di Mugello

COMPILA IL MODULO SOTTOSTANTE PER RICEVERE MAGGIORI INFORMAZIONI







Invia la richiesta ad altre agenzie
Accetto il trattamento dei miei dati



4c srl

Via bagutta 13
20121 Milano

3755023654    Riferimenti: 4C SRL

Barberino di Mugello
Prezzo: € 57.000
E
1
40
1
1



Descrizione:
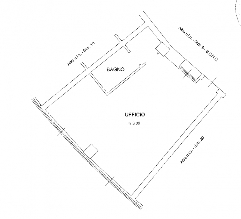
In complesso direzionale realizzato nel 2006, proponiamo ufficio di circa 40 mq situato al piano primo, ideale per attività direzionali e uso ufficio.l'immobile è composto da:- ambiente ufficio luminoso con ampie vetrate- bagno di servizio- garage di proprietà al piano interratola posizione centrale a barberino di mugello garantisce comodità ai servizi, facilità di accesso e ottima visibilità per attività professionali.soluzione ideale per professionisti, studi tecnici, consulenze o sedi operative.prezzo euro: 57.000,00 classe energetica: eep: 122,26 kwh/m anno




Caratteristiche immobile:
Codice inserzione: 1775097994
Rif. Annuncio: BM101
Provincia: Firenze
Comune: Barberino di Mugello
Superficie (Mq) : 40 Mq.
Tipo immobile: Negozi uffici capannoni
Stato immobile: usato
Anno costruzione/ristrutturazione: 2006
Piano: 1
Garage: Singolo
Posti auto scoperti: 1 posto auto
Bagni: 1

Costi:
Prezzo € 57.000


Efficienza energetica:
Classe energetica: E
Indice di prestazione energetica (EPgl): 122.26 kWh/mc annui
Riscaldamento: autonomo