home page > Annunci immobiliari in Italia > Toscana > Firenze > Borgo San Lorenzo > Case e ville indipendenti in vendita > Scheda immobile

Case e ville indipendenti in vendita a Borgo San Lorenzo

COMPILA IL MODULO SOTTOSTANTE PER RICEVERE MAGGIORI INFORMAZIONI







Invia la richiesta ad altre agenzie
Accetto il trattamento dei miei dati



Centro immobiliare della toscana

Piazzale curtatone e montanara 8
50032 Borgo San Lorenzo (FI)

0558495084    0558456802

Borgo San Lorenzo
Prezzo: € 475.000
3
3
220
Piano terra



Descrizione:
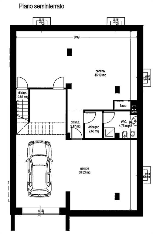
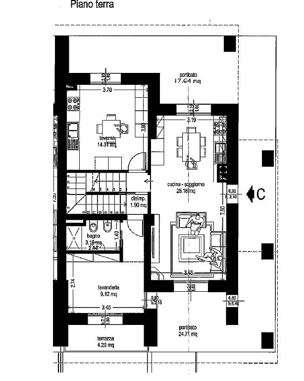
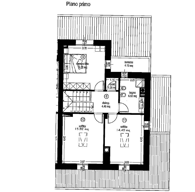
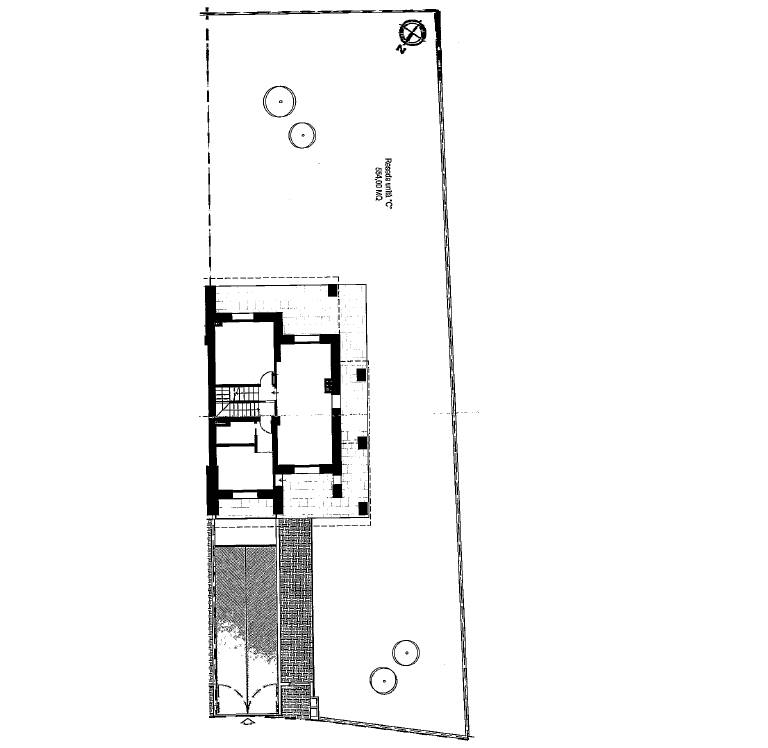
A due passi dal paese, in un contesto molto tranquillo e signorile, esposizione ottima, favoloso terratetto libero su 3 lati con ingresso indipendente. L'immobile di 220 mq è suddiviso su 3 livelli: piano terra (sala pranzo, cucina, bagno e lavanderia), piano primo (bagno, terrazza, 3 camere, ripostiglio, terrazza) e piano seminterrato ( garage, taverna e bagno). La proprietà comprende inoltre un bellissimo giardino su 3 lati di 550 mq. Qualità delle rifiniture, la cura per i dettagli, la classe energetica a ++++, riscaldamento a pavimento con pannelli radianti, tetto ventilato, cappotto esterno, pannelli solari, caldaia a condensazione, cisterna accumulo acque pluviali. Per maggiori informazioni rivolgersi in agenzia. Classe energetica: non soggetto




Caratteristiche immobile:
Codice inserzione: 1765163480
Rif. Annuncio: 2/507
Provincia: Firenze
Comune: Borgo San Lorenzo
Superficie (Mq) : 220 Mq.
Tipo immobile: Case e ville indipendenti
Stato immobile: usato
Piano: Piano terra
Camere: 3
Garage: Singolo
Bagni: 3
Terrazze: 1

Costi:
Prezzo € 475.000


Efficienza energetica:
Classe energetica: Immobile non soggetto all'obbligo di certificazione