Descrizione:
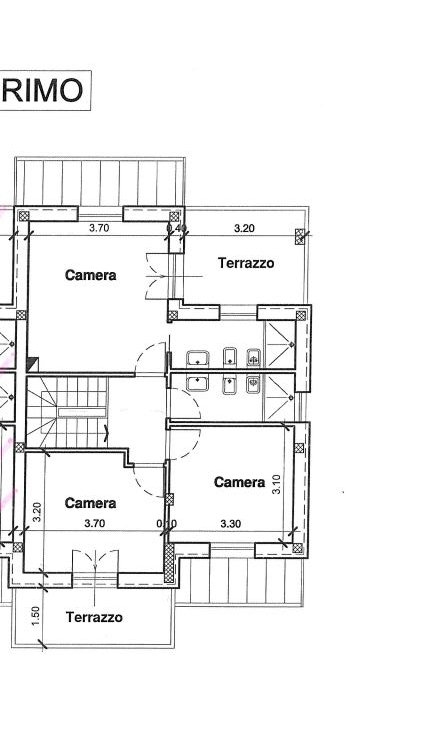
Il rosi.in zona residenziale , disponiamo di villetta angolare, libera su tre lati, di prossima realizzazione.l'immobile sviluppa una superficie totale commerciale di circa 210 mq ; la zona giorno di 62 mq si compone da ampio soggiorno con sala da pranzo e cucina abitabile, entrambe con affaccio sulle due logge oltre servizio.la zona notte al primo piano è caratterizzata da tre camere da letto, la padronale con bagno privato, oltre due terrazze e servizio.la villetta sarà circondata su tre lati da un curato giardino privato di circa 900 mq, ideale per pranzi e cene all'aperto.completa la proprietà la soffitta sottotetto di 45 mq e il garage di 39 mqla villetta verrà costruita in classe energetica 'a4' , sarà dotata di impianti di ultima generazione per il risparmio energetico, impianto di aria condizionata e pannelli fotovoltaici. Con possibilità do scegliere il capitolato.la zona di ubicazione è centrale è ben servita, il centro commerciale 'i gigli' e il casello autostradale di calenzano distano circa 2 km auto. Il centro di calenzano è raggiungibile in 9 minuti grazie alla presenza di varie fermate dei mezzi pubblici.per ricevere maggiori informazioni e/o fissare un appuntamento chiamateci allo o al oppure scriveteci via mail: immobile è visibile anche su facebook, cerca 'dinamo casa' e clicca mi piace.