home page > Annunci immobiliari in Italia > Toscana > Firenze > Campi Bisenzio > Case e ville indipendenti in vendita > Scheda immobile

Case e ville indipendenti in vendita a Campi Bisenzio

COMPILA IL MODULO SOTTOSTANTE PER RICEVERE MAGGIORI INFORMAZIONI







Invia la richiesta ad altre agenzie
Accetto il trattamento dei miei dati



Casabella immobiliare

Via tassoni, 60
50013 Campi Bisenzio (FI)

055...89.53.825    055...89.53.825

Campi Bisenzio
Prezzo: € 620.000
E
4
3
243
Piano terra



Descrizione:
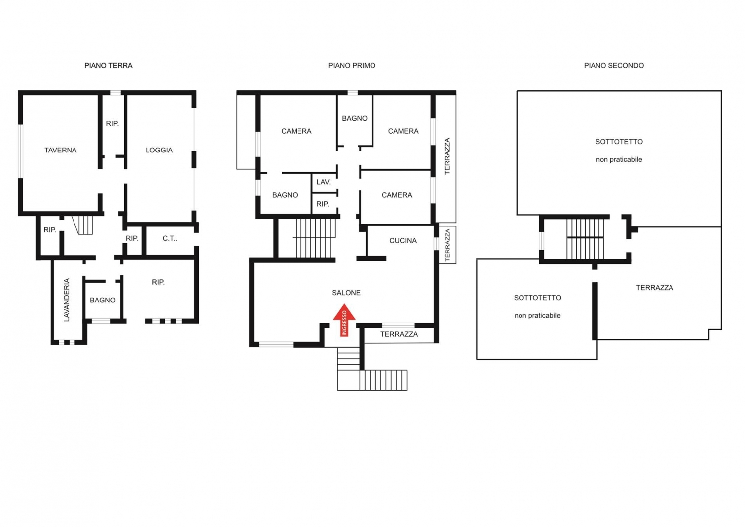
Campi bisenzio, località san donnino, in contesto prettamente residenziale, piacevole e riservato, nonché in prossimità della prima periferia del comune di firenze e di tutti i principali servizi, si propone in vendita deliziosa villetta libera su tre lati di 243 mq catastali, oltre quattro balconi, terrazza panoramica, giardino e garage esclusivo. L'immobile, disposto su tre livelli fuori terra, è cosù composto: al piano primo, raggiungibile tramite scala esterna dalla parte frontale del giardino, si sviluppano un ingresso su doppio salone open space con cucinotto (collegato a primo balcone), disimpegno notte con vano lavanderia e ripostiglio, camerina/studio collegata a secondo balcone, camera doppia, servizio finestrato con doccia e camera da letto matrimoniale con proprio servizio finestrato e collegamento a terzo balcone. Dal disimpegno notte, salendo una rampa di scale, si raggiunge il secondo livello del fabbricato, occupato da una splendida terrazza abitabile panoramica di circa 20 mq. Il pian terreno, infine, è attrezzato per costituire un appartamento indipendente, separato da quello sovrastante, ed è composto da ampio loggiato di ingresso, disimpegno, ampia cucina abitabile con camino, camera da letto, servizio finestrato con doccia, vano lavanderia e ripostiglio. Completa la proprietà, con accesso dalla parte tergale del giardino, un doppio garage di 36 mq. L'immobile, impreziosito da un incantevole giardino perimetrale di circa 250 mq, in parte piastrellato e in parte verde, si presenta in ottime condizioni, grazie anche a una recentissima e completa ristrutturazione. Si presta idealmente per famiglie numerose, anche composte da più nuclei, dal momento che il pian terreno è di fatto un secondo appartamento indipendente, perfetto per ospitare persone anziane per l'assenza di barriere architettoniche. Possibilità di parcheggiare più auto nel resede carrabile, e, di conseguenza, di destinare l'ampio garage ad altri utilizzi. Richiesti euro 620.000, libero subito, vendesi. Classe energetica: e epi: 128,363 kwh/m2 anno




Caratteristiche immobile:
Codice inserzione: 1760322694
Rif. Annuncio: 2/1143
Provincia: Firenze
Comune: Campi Bisenzio
Zona: San Donnino  
Superficie (Mq) : 243 Mq.
Tipo immobile: Case e ville indipendenti
Stato immobile: usato
Piano: Piano terra
Camere: 4
Arredato:
Garage: Singolo
Bagni: 3
Terrazze: 2

Costi:
Prezzo € 620.000


Efficienza energetica:
Classe energetica: E
Indice di prestazione energetica (EPgl): 128.36 kWh/mq annui
Riscaldamento: autonomo