057174703 Riferimenti: Lorenzo Casini
Descrizione:
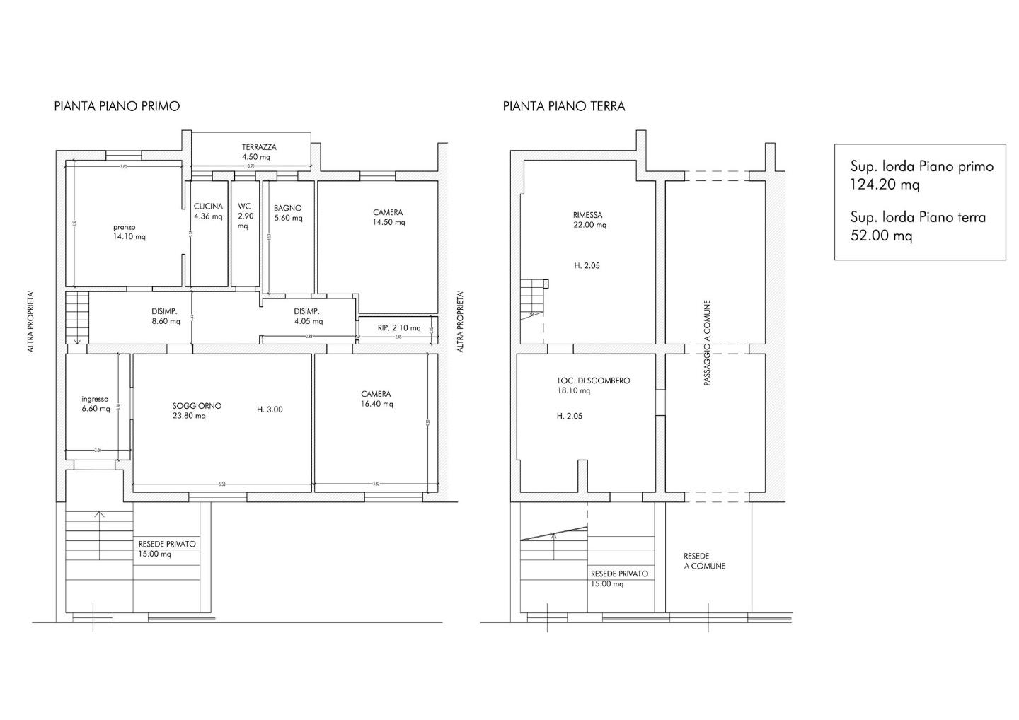
Rif: e 26/023 - empoli rif. E zona poste centrali, in palazzina completamente ristrutturata, appartamento indipendente. a due passi dai principali servizi si propone un ampio appartamento posto al piano terra rialzato ingresso indipendente composto da disimpegno di entrata, ampio soggiorno con terrazzo, sala da pranzo che si apre ad un cucinotto finestrato ed accesso ad un comodo terrazzo tergale; disimpegno notte, due bagni entrambi finestrati, due camere matrimoniali ed un ripostiglio.dalla zona giorno scala interna che porta ad un locale accessorio e ad una rimessa per un totale di circa mq. 40 utili.ottima zonaliberoeuro 275 mila trattabili
| Codice inserzione: | 1772589004 |
| Rif. Annuncio: | 1398006/421/E 26/023 |
| Provincia: | Firenze |
| Comune: | Empoli |
| Superficie (Mq) : | 140 Mq. |
| Tipo immobile: | Appartamento |
| Stato immobile: | usato |
| Anno costruzione/ristrutturazione: | 1968 |
| Piano: | Piano rialzato |
| Camere: | 2 |
| Garage: | Doppio |
| Bagni: | 2 |
| Prezzo | € 275.000 |