home page > Annunci immobiliari in Italia > Toscana > Firenze > Empoli > Case e ville indipendenti in vendita > Scheda immobile

Case e ville indipendenti in vendita a Empoli

COMPILA IL MODULO SOTTOSTANTE PER RICEVERE MAGGIORI INFORMAZIONI







Invia la richiesta ad altre agenzie
Accetto il trattamento dei miei dati



Case & co

Via carlo alberto dalla chiesa, 56
50053 Empoli (FI)

3386187362    Riferimenti: Sara Puccetti

Empoli
Prezzo: € 199.000
G
3
2
110
Su più livelli
1



Descrizione:
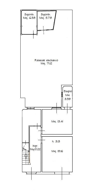
Rif: in vendita a empolilocalità santa maria terratetto da ristrutturare - 5 vani con giardinoproponiamo in vendita un immobile situato a santa maria, in una zona residenziale interna molto tranquilla.il terratetto è disposto su due livelli ed è composta al piano terra da ingresso nel soggiorno, cucina, bagno e accesso al giardino tergale di circa 75 mq oltre a due locali di deposito;al piano primo ci sono due camere da letto matrimoniali, un balcone oltre ad uno studio/cameretta oltre al bagno5 vani, distribuiti in modo funzionale2/3 camere da letto;2 bagniabitazione 100 mqcantina - taverna 12 mqgiardino 74 mql'immobile è da ristrutturare.prezzo richiesto: € 199.000l'indirizzo riportato è indicativo e non corrisponde alla reale ubicazione dell'immobile.maggiori informazioni verranno fornite telefonicamente.non una semplice agenzia immobiliare ma uno studio professionale che può supportarti in ogni fase della compravendita:âœ... assistenza per mutui e pratiche finanziarieâœ... supporto tecnico e burocraticoâœ... consulenza per ristrutturazioni e valorizzazione dell'immobileâœ... collaborazione con professionisti qualificati del territorio? scopri il reale valore del tuo immobile con una valutazione professionale e senza impegno:per maggiori informazioni o per richiedere una valutazione gratuita:




Caratteristiche immobile:
Codice inserzione: 1758156487
Rif. Annuncio: 1345430/52/603
Provincia: Firenze
Comune: Empoli
Superficie (Mq) : 110 Mq.
Tipo immobile: Case e ville indipendenti
Stato immobile: usato da riattare
Anno costruzione/ristrutturazione: 1970
Piano: Su più livelli
Camere: 3
Posti auto scoperti: 1 posto auto
Tipologia giardino : Privato
Bagni: 2

Costi:
Prezzo € 199.000


Efficienza energetica:
Classe energetica: G
Indice di prestazione energetica (EPgl): 200 kWh/mq annui