home page > Annunci immobiliari in Italia > Toscana > Firenze > Empoli > Case e ville indipendenti in vendita > Scheda immobile

Case e ville indipendenti in vendita a Empoli

COMPILA IL MODULO SOTTOSTANTE PER RICEVERE MAGGIORI INFORMAZIONI







Invia la richiesta ad altre agenzie
Accetto il trattamento dei miei dati



Agenzia immobiliare tognetti

Via salvagnoli 41
50053 Empoli (FI)

0571534861    3398740982    Riferimenti: Alessio Guerrini

Empoli
Prezzo: € 199.000
G
3
2
110
Su più livelli
1



Descrizione:
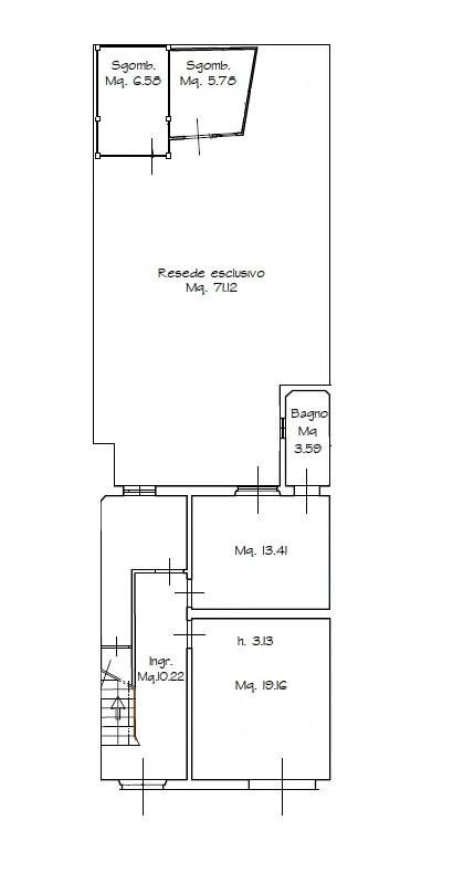
Rif: in vendita a empolilocalità santa maria terratetto da ristrutturare - 5 vani con giardinoproponiamo in vendita un immobile situato a santa maria, in una zona residenziale interna molto tranquilla.il terratetto è disposto su due livelli ed è composta al piano terra da ingresso nel soggiorno, cucina, bagno e accesso al giardino tergale di circa 75 mq oltre a due locali di deposito;al piano primo ci sono due camere da letto matrimoniali, un balcone oltre ad uno studio/cameretta oltre al bagno5 vani, distribuiti in modo funzionale2/3 camere da letto;2 bagniabitazione 100 mqcantina - taverna 12 mqgiardino 74 mql'immobile è da ristrutturare.prezzo richiesto: € 200.000l'indirizzo riportato è indicativo e non corrisponde alla reale ubicazione dell'immobile.maggiori informazioni verranno fornite telefonicamente.etica immobiliare di riccardo raugeivia emilio bardini, 48 empoli (fi)telefono e whatsappnon una semplice agenzia immobiliare ma uno studio professionale che può supportarti in ogni fase della compravendita:âœ... assistenza per mutui e pratiche finanziarieâœ... supporto tecnico e burocraticoâœ... consulenza per ristrutturazioni e valorizzazione dell'immobileâœ... collaborazione con professionisti qualificati del territorio? scopri il reale valore del tuo immobile con una valutazione professionale e senza impegno:per maggiori informazioni o per richiedere una valutazione gratuita:




Caratteristiche immobile:
Codice inserzione: 1758588484
Rif. Annuncio: 1344045/126/603
Provincia: Firenze
Comune: Empoli
Superficie (Mq) : 110 Mq.
Tipo immobile: Case e ville indipendenti
Stato immobile: usato da riattare
Anno costruzione/ristrutturazione: 1970
Piano: Su più livelli
Camere: 3
Posti auto scoperti: 1 posto auto
Tipologia giardino : Privato
Bagni: 2

Costi:
Prezzo € 199.000


Efficienza energetica:
Classe energetica: G
Indice di prestazione energetica (EPgl): 200 kWh/mq annui