home page > Annunci immobiliari in Italia > Toscana > Firenze > Empoli > Negozi uffici capannoni in affitto > Scheda immobile

Negozi uffici capannoni in affitto a Empoli

COMPILA IL MODULO SOTTOSTANTE PER RICEVERE MAGGIORI INFORMAZIONI







Invia la richiesta ad altre agenzie
Accetto il trattamento dei miei dati



Agenzia immobiliare baggiani di baggiani daniela

Via jacopo carrucci, 85 - empoli (fi)
50053 Empoli (FI)

0571.526403    3291903304    Riferimenti: BAGGIANI/DANIELA

Empoli
Prezzo: € 800
G
36



Descrizione:
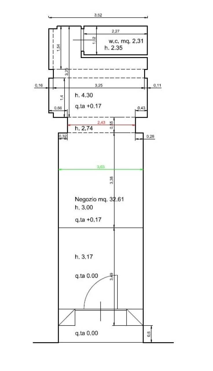
In pieno centro storico di empoli, in una delle vie più frequentate e ad altissimo transito pedonale, proponiamo in affitto/vendita un fondo commerciale di grande visibilità.posizione eccezionale, a due passi da piazza della vittoria e dalla stazione, circondato da attività commerciali, bar, uffici e servizi.il locale si presenta in buone condizioni, con vetrina fronte strada, perfetta per garantire massima esposizione e attrattività. internamente è composto da un unico ambiente open space, facilmente modulabile secondo le esigenze, e dispone di servizio igienico.superficie: 35 mqvetrina su strada ad alto passaggioadatto a diverse attività commerciali o professionalidisponibilità immediataper informazioni relative a una possibile vendita del fondoideale per chi cerca visibilità, centralità e potenziale commerciale nel cuore pulsante di empoli. contattaci per maggiori informazioni o per prenotare una visita.




Caratteristiche immobile:
Codice inserzione: 1751527265
Rif. Annuncio: CS5087
Provincia: Firenze
Comune: Empoli
Superficie (Mq) : 36 Mq.
Tipo immobile: Negozi uffici capannoni

Costi:
Prezzo € 800


Efficienza energetica:
Classe energetica: G
Indice di prestazione energetica (EPgl): 175 kWh/mc annui