home page > Annunci immobiliari in Italia > Toscana > Firenze > Fiesole > Case e ville indipendenti in vendita > Scheda immobile

Case e ville indipendenti in vendita a Fiesole

COMPILA IL MODULO SOTTOSTANTE PER RICEVERE MAGGIORI INFORMAZIONI







Invia la richiesta ad altre agenzie
Accetto il trattamento dei miei dati



Immobilflorence

Via g. Caponsacchi 10/12 rosso
50121 Firenze

0555271380    0555271380    Riferimenti: Filippo Iania

Fiesole
Prezzo: € 2.250.000
G
8
5
378
Piano terra



Descrizione:
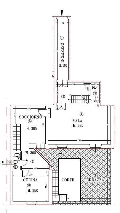
Scori il tuo angolo di eleganza nel cuore di fiesole!siamo lieti di presentarti questa deliziosa palazzina d'epoca in vendita, situata in posizione centralissima, con caratteristiche uniche che la rendono un'autentica gemma nel panorama immobiliare di fiesole.caratteristiche principali:posizione centrale: goditi la comodità di vivere nel cuore di fiesole, a pochi passi dalle prestigiose piazze e circondato dalla bellezza verde del paesaggio circostante.architettura d'epoca: questa palazzina si sviluppa su tre livelli, con una maestosa presenza d'epoca che trasuda charme e raffinatezza.doppio ingresso: l'accesso flessibile contribuisce a creare una residenza accogliente e versatile.spazi esterni unici:terrazza di 30 mq: un luogo perfetto per momenti di relax o per intrattenere amici e familiari con una vista incantevole.corte privata di 25 mq: uno spazio intimo e riservato che aggiunge un tocco di esclusività.interni raffinati:ampio soggiorno e cucina: il piano terra accoglie un luminoso soggiorno con accesso alla terrazza, una cucina attrezzata con sala pranzo, un bagno e un pratico ripostiglio.zona notte al primo piano: sei camere da letto, tre bagni, un balcone frontale e una spaziosa terrazza sul retro offrono comfort e privacy.seminterrato con accesso privato: due camere e un bagno, con accesso diretto alla corte privata.ampio garage e cantina:garage di 18 mq: con accessi interni, un rifugio sicuro per la tua auto.stanze adibite a cantina: due ampie stanze per conservare i tuoi tesori.condizioni eccellenti:finiture di alta qualità: un'attenzione particolare ai dettagli e materiali pregiati.affacci prestigiosi: vista sul verde e sulle affascinanti piazze di fiesole.versatilità abitativa:divisibile e abitabile da diverse famiglie: la proprietà si presta alla creazione di più unità abitative, perfetta per diverse esigenze familiari.non perdere l'opportunità di possedere questa residenza straordinaria, una fusione perfetta di storia, stile e comfort. Contattaci ora per prenotare la tua visita e immergerti nell'atmosfera unica di questa proprietà esclusiva!contattaci per maggiori informazioni e per prenotare una visita! classe energetica: g epi: 175 kwh/m2 anno




Caratteristiche immobile:
Codice inserzione: 1765341140
Rif. Annuncio: fi2500fsle-3015
Provincia: Firenze
Comune: Fiesole
Zona: San Domenico  
Superficie (Mq) : 378 Mq.
Tipo immobile: Case e ville indipendenti
Piano: Piano terra
Camere: 8
Garage: Singolo
Bagni: 5
Terrazze: 1

Costi:
Prezzo € 2.250.000


Efficienza energetica:
Classe energetica: G
Indice di prestazione energetica (EPgl): 175 kWh/mq annui
Riscaldamento: autonomo