home page > Annunci immobiliari in Italia > Toscana > Firenze > Figline e Incisa Valdarno > Negozi uffici capannoni in vendita > Scheda immobile

Negozi uffici capannoni in vendita a Figline e Incisa Valdarno

COMPILA IL MODULO SOTTOSTANTE PER RICEVERE MAGGIORI INFORMAZIONI







Invia la richiesta ad altre agenzie
Accetto il trattamento dei miei dati



Blustudio immobiliare

Piazza marsilio ficino 63
50063 Figline e Incisa Valdarno (FI)

055959418    3397798904    Riferimenti: TILLI/VALENTINA

Figline e Incisa Valdarno
Prezzo: € 265.000
3
1
600
Piano terra



Descrizione:
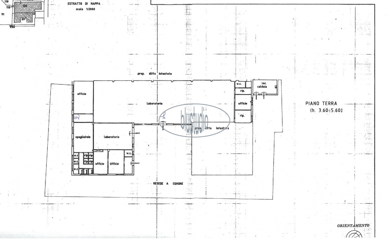
Loc. Matassino, vendesi capannone con abitazione. Il fabbricato industriale à costituito da un corpo principale a pianta rettangolare e ad un solo piano fuori terra, oltre ad una palazzina ad uso uffici sul lato sinistro di chi guarda il fabbricato industriale frontalmente, della consistenza di mq.480 ca , con altezza interna da 3,60 a 5,60 ml; mentre sul lato destro troviamo una palazzina ad uso abitativo, ad un solo piano fuori terra, composta da ampio vano ingresso con 5 vani oltre bagno e ripostiglio per complessivi 120 mq.ca con altezza interna di ml.3,15.il complesso immobiliare à infine completato da un resede scoperto sul quale insiste sul lato un locate termico.l'immobile necessita di ristrutturazione. per ulteriori informazioni e per fissare una visita potete contattarci allo , dalle 9:30 alle 13:00 e dalle 15:00 alle 19:00 dal lunedଠal venerdà¬, oppure inviando una richiesta alla sezione 'contatti'.lavoriamo da anni sul mercato degli immobili del valdarno fiorentino e comuni limitrofi e oggi siamo una realtà- consolidata in grado di offrire ai nostri clienti un servizio altamente professionale, consentendo loro di acquistare in modo sicuro la 'casa dei sogni'. Saremo a vostra completa disposizione per trovare, scegliere e consigliare l'immobile che fa al caso vostro. Classe energetica: non dichiarata




Caratteristiche immobile:
Codice inserzione: 1713842202
Rif. Annuncio: V-2058
Provincia: Firenze
Comune: Figline e Incisa Valdarno
Superficie (Mq) : 600 Mq.
Tipo immobile: Negozi uffici capannoni
Stato immobile: usato da riattare
Piano: Piano terra
Camere: 3
Stato al rogito: Libero
Tipologia giardino : Privato
Bagni: 1

Costi:
Prezzo € 265.000


Efficienza energetica: