home page > Annunci immobiliari in Italia > Toscana > Firenze > Firenze > appartamenti in vendita > Scheda immobile

Appartamento in vendita a Firenze

COMPILA IL MODULO SOTTOSTANTE PER RICEVERE MAGGIORI INFORMAZIONI







Invia la richiesta ad altre agenzie
Accetto il trattamento dei miei dati



Building luxury real estate

Via senese 67r
50121 Firenze

0559064012    335434585    Riferimenti: ROMANELLI/CINZIA

Firenze
Prezzo: € 550.000
A2
1
1
77
1



Descrizione:
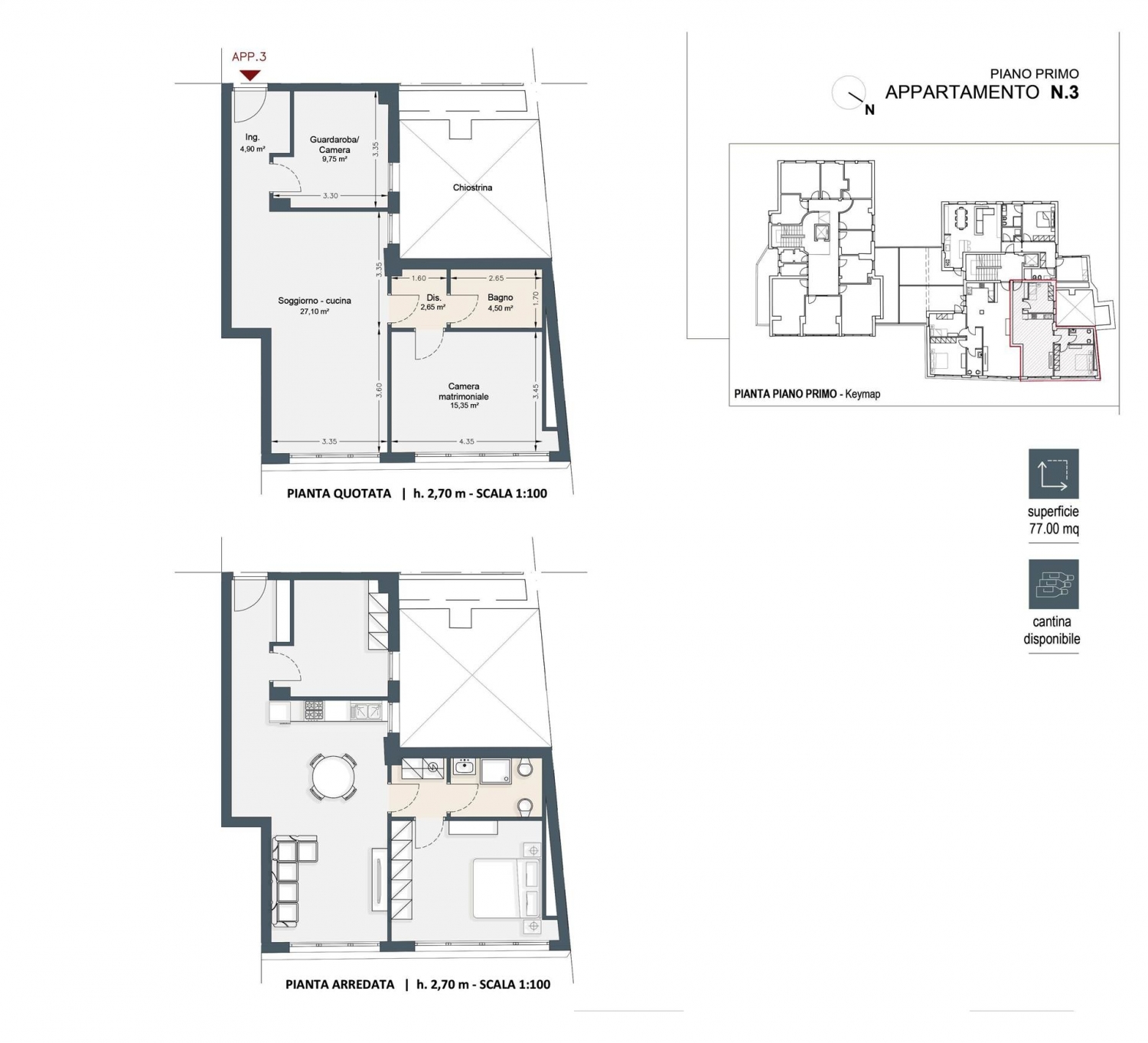
Rb557 - firenze - beccaria (pressi) - a pochi passi da piazza beccaria vendiamo appartamento in palazzo di nuova ristrutturazione posizionato strategicamente nel cuore di firenze. Queste residenze si trovano a breve distanza dalle rinomate strade del centro ed offrono un'esperienza completa in una città intrisa di storia, arte ed energia. L'immobile posto al piano primo è composto da ampia e luminosa zona living con cucina a vista e soggiorno, camera matrimoniale, bagno con antibagno e spaziosa stanza guardaroba o cameretta. Possibilità di personalizzare gli appartamenti a misura delle proprie esigenze. Le residenze incarnano l'eccellenza grazie a una qualità architettonica all'avanguardia, dove i materiali di primissima qualità vengono accuratamente selezionati per garantire i massimi standard, anche in termini energetici. Lo stile architettonico è un raffinato connubio di ricerca, contemporaneità e lusso nel design, armonizzandosi in modo impeccabile con la bellezza artistica di firenze. La riqualificazione mira a trasformare l'edificio in un'opera green a impatto zero, sottolineando l'impegno per la sostenibilità ambientale. Location di prestigio per chi desidera vivere in un ambiente esclusivo e ricercato. Richiesta euro 550.000 + ivapossibilità di acquistare a parte posto moto e cantina. Classe energetica: a+ epi: 22 kwh/m2 anno




Caratteristiche immobile:
Codice inserzione: 1764905540
Rif. Annuncio: RB557
Provincia: Firenze
Comune: Firenze
Zona: Beccaria  
Superficie (Mq) : 77 Mq.
Tipo immobile: Appartamento
Stato immobile: ristrutturato
Piano: 1
Camere: 1
Bagni: 1

Costi:
Prezzo € 550.000


Efficienza energetica:
Classe energetica: A2
Indice di prestazione energetica (EPgl): 22 kWh/mq annui
Riscaldamento: autonomo