home page > Annunci immobiliari in Italia > Toscana > Firenze > Signa > Case e ville indipendenti in vendita > Scheda immobile

Case e ville indipendenti in vendita a Signa

COMPILA IL MODULO SOTTOSTANTE PER RICEVERE MAGGIORI INFORMAZIONI







Invia la richiesta ad altre agenzie
Accetto il trattamento dei miei dati



Immobiliare il faro firenze pisa viareggio

Via rucellai, 20
50013 Campi Bisenzio (FI)

0550354634    Riferimenti: Giovanni Bucca

Signa
Prezzo: € 240.000
G
1
500



Descrizione:
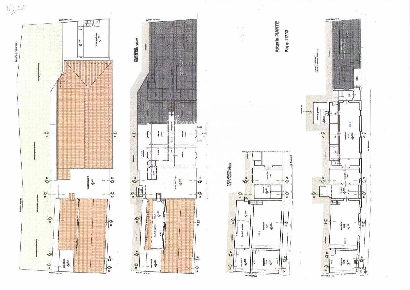
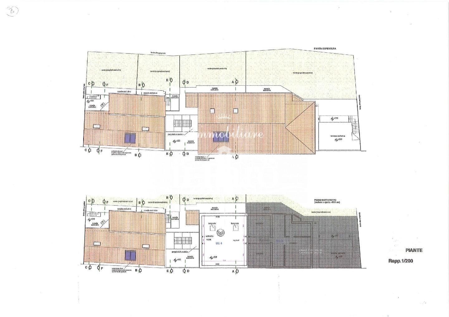
Rif: t810 - rif. T810.signa pressi stazione, proponiamo in vendita un' ampio complesso immobiliare composto da un' appartamento, due laboratori ed una rimessa, oltre ampio lastrico abitabile.il complesso si presenta totalmente da ristrutturare ed ha una superficie lorda complessiva di mq. 500, oltre la rimessa e il lastrico di quasi 85 mq. l'immobile è possibile suddividerlo fino a quattro unità abitative.attualmente il fabbricato è composto dall' appartamento al piano primo con ingresso indipendente e lastrico solare, due magazzini e l'autorimessa al piano terra con accesso dalla via principale.rif. T810




Caratteristiche immobile:
Codice inserzione: 1759711907
Rif. Annuncio: 1317697/1340/T810
Provincia: Firenze
Comune: Signa
Superficie (Mq) : 500 Mq.
Tipo immobile: Case e ville indipendenti
Stato immobile: usato da riattare
Garage: Doppio
Bagni: 1

Costi:
Prezzo € 240.000


Efficienza energetica:
Classe energetica: G
Indice di prestazione energetica (EPgl): 3.5 kWh/mq annui