home page > Annunci immobiliari in Italia > Toscana > Firenze > Signa > Negozi uffici capannoni in vendita > Scheda immobile

Negozi uffici capannoni in vendita a Signa

COMPILA IL MODULO SOTTOSTANTE PER RICEVERE MAGGIORI INFORMAZIONI







Invia la richiesta ad altre agenzie
Accetto il trattamento dei miei dati



Studio immobiliare geom. Landi alberto

Via livornese 349
50055 Lastra a Signa (FI)

0558722939

Signa
Prezzo: € 290.000
G
1
300
Ultimo piano



Descrizione:
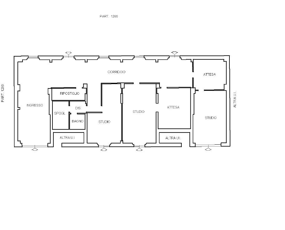
(rif. V-381) zona prossima stazione di signa, vicino a tutti i servizi, di recente costruzione, fondo adibito a uffici direzionali di 300 mq con 2 ingressi privati, composta da grande ingresso, corridoio e sale di attesa, 3 uffici, antibagno e bagno, climatizzatire e termo singolo. Pagamento con possibilita' di permuta anche abitazione da restaurare. classe energetica: g




Caratteristiche immobile:
Codice inserzione: 1770865831
Rif. Annuncio: V-381
Provincia: Firenze
Comune: Signa
Superficie (Mq) : 300 Mq.
Tipo immobile: Negozi uffici capannoni
Stato immobile: nuovo
Piano: Ultimo piano
Bagni: 1

Costi:
Prezzo € 290.000


Efficienza energetica:
Classe energetica: G
Riscaldamento: autonomo